xPavelx Опубліковано: 11 жовтня 2017 Автор Поділитись Опубліковано: 11 жовтня 2017 и вообще, очередной вопрос, который остается без ответа, зачем вы строили из ГБ если собрались его утеплять и тем более пенопластом? Ну потому что он теплее до сегодняшнего дня я собирался его утеплять минватой, но если можно пенопластом, то я подумал, а почему бы и нет черт возьми только при условии, что это будет не хуже у ваты свои плюсы, у пенопласта - свои, оба допустимы к применению Согласен, только непонятно на какие плюсы и минусы мне обращать внимание как конечному потребителю. Ну допустим пенопласт почти паронепроницаем, ну и какая мне разница если это не будет приносить проблем при эксплуатации. Наоборот, можно не заморачиваться с паропроницаемостью остальных слоев пирога стены. По цене он вроде дешевле и по монтажу тоже. Посилання на коментар Поділитися на інших сайтах More sharing options...
Татьяна5 Опубліковано: 11 жовтня 2017 Поділитись Опубліковано: 11 жовтня 2017 Ну потому что он теплее до сегодняшнего дня я собирался его утеплять минватой, но если можно пенопластом, то я подумал, а почему бы и нет черт возьми только при условии, что это будет не хуже Согласен, только непонятно на какие плюсы и минусы мне обращать внимание как конечному потребителю. Ну допустим пенопласт почти паронепроницаем, ну и какая мне разница если это не будет приносить проблем при эксплуатации. Наоборот, можно не заморачиваться с паропроницаемостью остальных слоев пирога стены. По цене он вроде дешевле и по монтажу тоже. Субъективно - я ставлю пенопласт там где стоит выбор ставить 100 мм ваты или ставить 150 мм пенопласта. Тогда 150 мм пенопласта и никакой проблемы не будет. Дышащие стены - 1% из тех, кто строит себе дом понимают, какой пирог должен быть (в ТЧ никаких обоев, грунтовок и декоративных штукатурок), только штук, только хардкор Пенопласт я бы не ставила там, где есть риск возгорания травы вокруг 1 Посилання на коментар Поділитися на інших сайтах More sharing options...
mastervovik Опубліковано: 11 жовтня 2017 Поділитись Опубліковано: 11 жовтня 2017 я ставлю пенопласт там где стоит выбор ставить 100 мм ваты или ставить 150 мм пенопласта. Тогда 150 мм пенопласта и никакой проблемы не будет. 100%, но если стоит вопрос 50 ваты или 100ппс, то я за вату, пускай субьективно. Посилання на коментар Поділитися на інших сайтах More sharing options...
Татьяна5 Опубліковано: 11 жовтня 2017 Поділитись Опубліковано: 11 жовтня 2017 100%, но если стоит вопрос 50 ваты или 100ппс, то я за вату, пускай субьективно. 100% Вас поддержу 1 Посилання на коментар Поділитися на інших сайтах More sharing options...
Vikctor Опубліковано: 11 жовтня 2017 Поділитись Опубліковано: 11 жовтня 2017 После разговора с кровельщиками таки решил увеличить угол до 28 градусов. Говорят с точки зрения беспроблемности эксплуатации и долговечности 28 градусов надежнее. Не простое решение, но решил что практичность важнее.. Мало того - Вы бы в техкарте выбранной черепицы посмотрели от какого минимального угла скатов её можно монтировать без спец мероприятий. 28 градусов практически гарантированно любая монтируется с обычной СДМ. А вот для скатов с наклоном 21 может понадобиться недешёвая мембрана с проклейкой швов и недешёвой же уплотняющей лентой на контррейки. Посилання на коментар Поділитися на інших сайтах More sharing options...
xPavelx Опубліковано: 11 жовтня 2017 Автор Поділитись Опубліковано: 11 жовтня 2017 Субъективно - я ставлю пенопласт там где стоит выбор ставить 100 мм ваты или ставить 150 мм пенопласта. Тогда 150 мм пенопласта и никакой проблемы не будет. Дышащие стены - 1% из тех, кто строит себе дом понимают, какой пирог должен быть (в ТЧ никаких обоев, грунтовок и декоративных штукатурок), только штук, только хардкор Пенопласт я бы не ставила там, где есть риск возгорания травы вокруг 100%, но если стоит вопрос 50 ваты или 100ппс, то я за вату, пускай субьективно. У меня стоит вопрос 100мм пенопласта или 100мм ваты. При прочих равных я бы предпочел что дешевле. Если допустим я поставлю вату и наклею какие нибудь паронепроницаемые обои/краску/штукатурку и т.д, то я получу такой же эффект как если б я использовал пенопласт ? Добавлено через 3 минуты Мало того - Вы бы в техкарте выбранной черепицы посмотрели от какого минимального угла скатов её можно монтировать без спец мероприятий. 28 градусов практически гарантированно любая монтируется с обычной СДМ. А вот для скатов с наклоном 21 может понадобиться недешёвая мембрана с проклейкой швов и недешёвой же уплотняющей лентой на контррейки. Черепица цпч брас таунас. Угол уклона от 21 градуса. Мембрана при любом угле будет ventia gold. Вроде как 150 гр/м2 Посилання на коментар Поділитися на інших сайтах More sharing options...
Татьяна5 Опубліковано: 11 жовтня 2017 Поділитись Опубліковано: 11 жовтня 2017 У меня стоит вопрос 100мм пенопласта или 100мм ваты. При прочих равных я бы предпочел что дешевле. Пенопласт дешевле, в тч в по работе (по крайней мере у моих фасадчиков, фасад на вате за м2 стоит дороже) 1 Посилання на коментар Поділитися на інших сайтах More sharing options...
mastervovik Опубліковано: 11 жовтня 2017 Поділитись Опубліковано: 11 жовтня 2017 Если допустим я поставлю вату и наклею какие нибудь паронепроницаемые обои/краску/штукатурку и т.д, то я получу такой же эффект как если б я использовал пенопласт ? Вы не стой стороны заходите, с ватой без разници какая отделка внутри, с пенопластом желательно пароНЕпроницаемая отделка. Добавлено через 46 секунд У меня стоит вопрос 100мм пенопласта или 100мм ваты. При прочих равных я бы предпочел что дешевле. Дешевле будет 50 ваты :D Посилання на коментар Поділитися на інших сайтах More sharing options...
xPavelx Опубліковано: 11 жовтня 2017 Автор Поділитись Опубліковано: 11 жовтня 2017 Пенопласт дешевле, в тч в по работе (по крайней мере у моих фасадчиков, фасад на вате за м2 стоит дороже) Вы не стой стороны заходите, с ватой без разници какая отделка внутри, с пенопластом желательно пароНЕпроницаемая отделка. Дешевле будет 50 ваты :D Вы не на той фразе сделали акцент. Я бы выделил так "При прочих равных я бы предпочел что дешевле.":) Посилання на коментар Поділитися на інших сайтах More sharing options...
Татьяна5 Опубліковано: 11 жовтня 2017 Поділитись Опубліковано: 11 жовтня 2017 Вы не на той фразе сделали акцент. Я бы выделил так "При прочих равных я бы предпочел что дешевле.":) Прочие не равны . Они просто разные, каждый со своей спецификой. Любой нормальный индивидуум выберет дешевле, при равном )) 3 Посилання на коментар Поділитися на інших сайтах More sharing options...
xPavelx Опубліковано: 11 жовтня 2017 Автор Поділитись Опубліковано: 11 жовтня 2017 Прочие не равны . Они просто разные, каждый со своей спецификой. Любой нормальный индивидуум выберет дешевле, при равном )) В общем после всех разговоров я для себя сделал такой вывод. Возможно, вата лучше, чем пенопласт. Но не факт. И если хватит денег на вату, то делать ватой (как говорится лучше перебздеть :D), если нет - то пенопластом 1 Посилання на коментар Поділитися на інших сайтах More sharing options...
mastervovik Опубліковано: 11 жовтня 2017 Поділитись Опубліковано: 11 жовтня 2017 В общем после всех разговоров я для себя сделал такой вывод. Возможно, вата лучше, чем пенопласт. Но не факт. Интересно как можно было прийти к такому выводу? :D Вата - лучше (именно в Вашем случае) ппс - дешевле, но вам естественно хочется чтоб дешевле было лучше :D 2 Посилання на коментар Поділитися на інших сайтах More sharing options...
xPavelx Опубліковано: 11 жовтня 2017 Автор Поділитись Опубліковано: 11 жовтня 2017 Интересно как можно было прийти к такому выводу? :D Вата - лучше (именно в Вашем случае) ппс - дешевле, но вам естественно хочется чтоб дешевле было лучше :D Пришел у такому выводу, потому что сидит дядька (Глеб Грин) с графиками и какими то измерениями и говорит, что можете утеплять пенопластом и ниче страшного не будет. Влага если и появится, то испарится. Но не все с этим согласны, где то есть сомнения - а вдруг не испарится и все покроется грибком. С ватой же такого эфекта быть не должно. Хотя мне непонятно, что если я сделаю паронепроницаемую штукатурку/краску на фасаде, куда денется пар ? Наверное останется в вате и если она сильно напитается паром и намокнет то тоже будут проблемы. Посилання на коментар Поділитися на інших сайтах More sharing options...
Frostico Опубліковано: 12 жовтня 2017 Поділитись Опубліковано: 12 жовтня 2017 Пришел у такому выводу, потому что сидит дядька (Глеб Грин) с графиками и какими то измерениями и говорит, что можете утеплять пенопластом и ниче страшного не будет. Влага если и появится, то испарится. Но не все с этим согласны, где то есть сомнения - а вдруг не испарится и все покроется грибком. С ватой же такого эфекта быть не должно. Хотя мне непонятно, что если я сделаю паронепроницаемую штукатурку/краску на фасаде, куда денется пар ? Наверное останется в вате и если она сильно напитается паром и намокнет то тоже будут проблемы. Если вы собираетесь делать паронепроницаемый фасад, то смысл тратиться на вату? Если уж выбираете вату, то нужно идти до конца. Посилання на коментар Поділитися на інших сайтах More sharing options...
-electron- Опубліковано: 12 жовтня 2017 Поділитись Опубліковано: 12 жовтня 2017 У меня стоит вопрос 100мм пенопласта или 100мм ваты. При прочих равных я бы предпочел что дешевле. Если допустим я поставлю вату и наклею какие нибудь паронепроницаемые обои/краску/штукатурку и т.д, то я получу такой же эффект как если б я использовал пенопласт ? Підкину но я ще трішки для холівару. Аерок Енерджі. І паропроникний і не горить і тд і тп. Добавлено через 3 минуты Хотя мне непонятно, что если я сделаю паронепроницаемую штукатурку/краску на фасаде, куда денется пар ? Наверное останется в вате и если она сильно напитается паром и намокнет то тоже будут проблемы. Так вата тому і дорожче, що не тільки сам матеріал дорожчий. Там ще і фініш відповідний. Простою Снєжкою :D не побілиш. Треба паропроникний фініш. Посилання на коментар Поділитися на інших сайтах More sharing options...
Tamburello Опубліковано: 12 жовтня 2017 Поділитись Опубліковано: 12 жовтня 2017 Ну потому что он теплее до сегодняшнего дня я собирался его утеплять минватой, но если можно пенопластом, то я подумал, а почему бы и нет черт возьм сломайте систему - утеплите газоблок газоблоком. 1 Посилання на коментар Поділитися на інших сайтах More sharing options...
Frostico Опубліковано: 12 жовтня 2017 Поділитись Опубліковано: 12 жовтня 2017 сломайте систему - утеплите газоблок газоблоком. Ктати норм тема. Правда не всякий фасадчик умеет и береться за Гб. Посилання на коментар Поділитися на інших сайтах More sharing options...
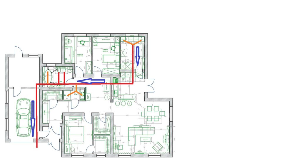
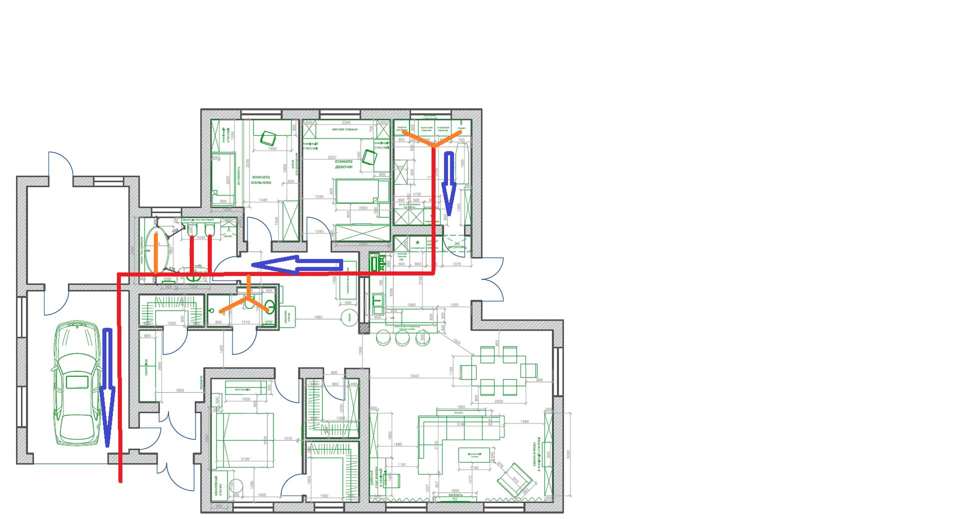
xPavelx Опубліковано: 12 жовтня 2017 Автор Поділитись Опубліковано: 12 жовтня 2017 Неожиданно открылось вакантное место сантехника Весь дом уже в траншеях. Нужно развести каналью примерно как на рисунке ниже. Кто может порекомендовать опытного мастера в Харькове? PS нарисовал схематично чтоб показать объем работ Посилання на коментар Поділитися на інших сайтах More sharing options...
Gitan Опубліковано: 12 жовтня 2017 Поділитись Опубліковано: 12 жовтня 2017 Ответил в личку 1 Посилання на коментар Поділитися на інших сайтах More sharing options...
yurriy Опубліковано: 12 жовтня 2017 Поділитись Опубліковано: 12 жовтня 2017 сломайте систему - утеплите газоблок газоблоком. Хех... Я вот сломал. Ну, систему :D. Таки утеплил газоблок 400мм D400 газоблоком Аэрок Энерджи 150мм. Мне, как заказчику, утеплитель понравился. Эта "пемза" оказалась, на удивление, довольно прочной. Думал будет в руках крошиться :D. А вот фасадчики стонали, что блоки мелкие и с ними много возни. И по стоимости материалов оказалось дороже ваты процентов на 20%. Много дорогих 26-сантиметровых дюбелей нужно. Около 8 шт на квадрат. Вчера сверлил в стене отверстие под трубу дымохода турбокотла. Сверлил изнутри, стена в разрезе - монолит. На срезе видно, что фреза прошла 2 блока утеплителя чуть выше вертикального шва. И ничего не откололось и не выкрошилось. В общем, я доволен утеплителем. По крайней мере пока . 4 Посилання на коментар Поділитися на інших сайтах More sharing options...
vadimv Опубліковано: 12 жовтня 2017 Поділитись Опубліковано: 12 жовтня 2017 И по стоимости материалов оказалось дороже ваты процентов на 20%.И в чем был смысл сего предприятия? И какое получилось значение теплопроводности в сравнении с ватой? 1 Посилання на коментар Поділитися на інших сайтах More sharing options...
yurriy Опубліковано: 12 жовтня 2017 Поділитись Опубліковано: 12 жовтня 2017 И в чем был смысл сего предприятия? И какое получилось значение теплопроводности в сравнении с ватой? Смысл для меня в долговечности утеплителя. У ваты ограниченный срок службы. Пока вата сухая, она теплее, бесспорно. Хотя и не на много. Но долго ли она будет сухой? Результат расчета тут. В библиотеке материалов нету газобетона Д150, взял ближайший Д200. 1 Посилання на коментар Поділитися на інших сайтах More sharing options...
mastervovik Опубліковано: 12 жовтня 2017 Поділитись Опубліковано: 12 жовтня 2017 Смысл для меня в долговечности утеплителя. У ваты ограниченный срок службы Вата простоит точно дольше ГБ, хоть мокрая хоть сухая ;) 2 Посилання на коментар Поділитися на інших сайтах More sharing options...
yurriy Опубліковано: 12 жовтня 2017 Поділитись Опубліковано: 12 жовтня 2017 Вата простоит точно дольше ГБ, хоть мокрая хоть сухая ;) Володя, а кто имеет опыт хотя бы 5-летнего фасада из ГБ? А вата то простоит, особенно за вентилируемым фасадом. Но толку от нее мокрой? 1 Посилання на коментар Поділитися на інших сайтах More sharing options...
Frostico Опубліковано: 12 жовтня 2017 Поділитись Опубліковано: 12 жовтня 2017 Хех... Я вот сломал. Ну, систему :D. Таки утеплил газоблок 400мм D400 газоблоком Аэрок Энерджи 150мм. Мне, как заказчику, утеплитель понравился. Эта "пемза" оказалась, на удивление, довольно прочной. Думал будет в руках крошиться :D. А вот фасадчики стонали, что блоки мелкие и с ними много возни. И по стоимости материалов оказалось дороже ваты процентов на 20%. Много дорогих 26-сантиметровых дюбелей нужно. Около 8 шт на квадрат. Вчера сверлил в стене отверстие под трубу дымохода турбокотла. Сверлил изнутри, стена в разрезе - монолит. На срезе видно, что фреза прошла 2 блока утеплителя чуть выше вертикального шва. И ничего не откололось и не выкрошилось. [ATTACH]586779[/ATTACH] В общем, я доволен утеплителем. По крайней мере пока . Рисковый вы)..мне почему-то казалось, что отверстия нужно снаружи сверлить) 2 Посилання на коментар Поділитися на інших сайтах More sharing options...
Рекомендовані повідомлення
Створіть акаунт або увійдіть у нього для коментування
Ви маєте бути користувачем, щоб залишити коментар
Створити акаунт
Зареєструйтеся для отримання акаунта. Це просто!
Зареєструвати акаунтУвійти
Вже зареєстровані? Увійдіть тут.
Увійти зараз