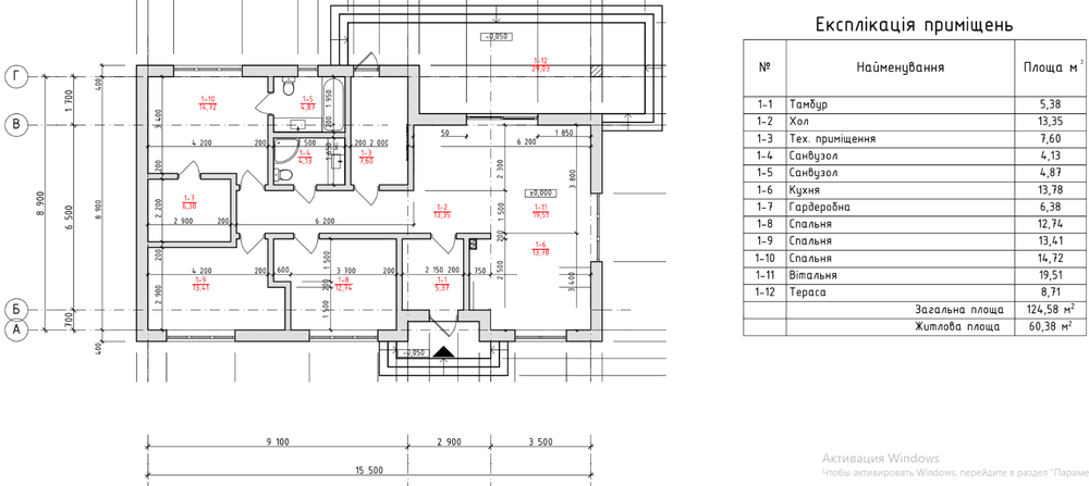
2778 Опубліковано: 7 травня 2020 Поділитись Опубліковано: 7 травня 2020 Зимой 2019 года пришло осознание, что жить в съемной квартире становится не выносимо (а карантин 2020го толко усилил это ощущение) , к этому моменту я уже год как не вылазил с сайтов продажи недвижимости а все местные риелторы знали меня по имени И тут чисто случайно подвернулся неплохой вариант который устроил и меня и супругу, участок 6 соток в селе Крюковщина Место для нас не новое мы здесь живем уже 7 лет нам нравится... Дом для постоянного проживания 4рех человек 2-е взрослых и 2-е детей : Один этаж 116 м/кв + терраса 25м/кв, стены ГБ 400 д400 однослойные, из прикольного отсутствие внутренних несущих стен, конструктив крыши фермы кровля битумка, фундамент ленточный сборно монолитный (адаптированный под нашу геологию), полы по грунту (сплошной плитой) В марте мы получили на руки наш проект, после чего потихоньку начали готовится к стройке... 35 Посилання на коментар Поділитися на інших сайтах More sharing options...
2778 Опубліковано: 7 травня 2020 Автор Поділитись Опубліковано: 7 травня 2020 Первые фото нашего участка 5 Посилання на коментар Поділитися на інших сайтах More sharing options...
ARCH INNOVATION Опубліковано: 7 травня 2020 Поділитись Опубліковано: 7 травня 2020 Тесновато для 4-х, ну да в тесноте да не в обиде. Посилання на коментар Поділитися на інших сайтах More sharing options...
lug Опубліковано: 7 травня 2020 Поділитись Опубліковано: 7 травня 2020 Тесновато для 4-х, Таладно! После съемных хат - за счастье. Строятся не только олигархи. Размах хотелок должен соответствовать уровню доходов, иначе можно строиться полжизни. 37 Посилання на коментар Поділитися на інших сайтах More sharing options...
ARCH INNOVATION Опубліковано: 8 травня 2020 Поділитись Опубліковано: 8 травня 2020 Таладно! После съемных хат - за счастье. Строятся не только олигархи. Размах хотелок должен соответствовать уровню доходов, иначе можно строиться полжизни. Ну хорошо, хорошо. Тогда желаю ТС что бы он не останавливался на достигнутом. И что бы следующий, хотя бы в полтора раза больше был. PS но метра по три, я бы к спальням точно прибавил. 1 Посилання на коментар Поділитися на інших сайтах More sharing options...
razzil Опубліковано: 8 травня 2020 Поділитись Опубліковано: 8 травня 2020 что бы следующий, хотя бы в полтора раза больше был а еще говорят, что размер не главное... 1 Посилання на коментар Поділитися на інших сайтах More sharing options...
ARCH INNOVATION Опубліковано: 8 травня 2020 Поділитись Опубліковано: 8 травня 2020 а еще говорят, что размер не главное... Конечно не главное! Главное это тонкая душевная организация))) На сим покидаю эту ветку, а то меня здесь сожруть ТС, удачи на каждом этапе 2 Посилання на коментар Поділитися на інших сайтах More sharing options...
Татьяна5 Опубліковано: 8 травня 2020 Поділитись Опубліковано: 8 травня 2020 Если тс позволит, плиз, подумайте о том, где будет висеть телевизор и как стоять диван. Гостиная не маленькая, а комфортной нычки я не вижу. В остальном '- оч приятный проект. Удачной стройки! 6 Посилання на коментар Поділитися на інших сайтах More sharing options...
vadimv Опубліковано: 8 травня 2020 Поділитись Опубліковано: 8 травня 2020 Если тс позволит, плиз, подумайте о том, где будет висеть телевизор и как стоять диван.Я вот тоже об этом подумал. А еще о том, что кладовки на кухне нет. 1 Посилання на коментар Поділитися на інших сайтах More sharing options...
2778 Опубліковано: 8 травня 2020 Автор Поділитись Опубліковано: 8 травня 2020 Если тс позволит, плиз, подумайте о том, где будет висеть телевизор и как стоять диван. Гостиная не маленькая, а комфортной нычки я не вижу. В остальном '- оч приятный проект. Удачной стройки! Меня тоже долго мучил вопрос расстановки мебели в гостиной, я нашел такой вариант (покритикуйте) Посилання на коментар Поділитися на інших сайтах More sharing options...
2778 Опубліковано: 8 травня 2020 Автор Поділитись Опубліковано: 8 травня 2020 Пару дней назад привезли бытовку, решил не арендовать а купить, после окончания стройки продам (посчитал что так дешевле) 3 Посилання на коментар Поділитися на інших сайтах More sharing options...
2778 Опубліковано: 8 травня 2020 Автор Поділитись Опубліковано: 8 травня 2020 (змінено) Я вот тоже об этом подумал. А еще о том, что кладовки на кухне нет. С кладовкой мы долго думали пытаясь ее впихнуть, в итоге решили что стеллаж в котельной закроет этот вопрос... Змінено 8 травня 2020 користувачем 2778 4 Посилання на коментар Поділитися на інших сайтах More sharing options...
vadimv Опубліковано: 8 травня 2020 Поділитись Опубліковано: 8 травня 2020 Меня тоже долго мучил вопрос расстановки мебели в гостиной, я нашел такой вариант (покритикуйте)ИМХО, норм. Особенно, что кухня примыкает к техпомещению (все коммуникации в одной кучке). Я бы только обеденный стол в углу добавил, и все. 1 Посилання на коментар Поділитися на інших сайтах More sharing options...
Narval Опубліковано: 8 травня 2020 Поділитись Опубліковано: 8 травня 2020 Тесновато для 4-х, ну да в тесноте да не в обиде. Отличный набор. Нет кабинета или гостевой, которые забирают будь здоров. Сразу сделаны ниши для шкафов в детских. Отличная планировка ! Гардероб один правда но зато нормальный Добавлено через 3 минуты С кладовкой мы долго думали пытаясь ее впихнуть, в итоге решили что стеллаж в котельной закроет этот вопрос... Если не будет твердотопов буферных емкостей и пр. Тоесть отопление или электро или газ, топочная отлично совместится с кладовкой. 3 Посилання на коментар Поділитися на інших сайтах More sharing options...
ARCH INNOVATION Опубліковано: 8 травня 2020 Поділитись Опубліковано: 8 травня 2020 Отличный набор. Нет кабинета или гостевой, которые забирают будь здоров. Сразу сделаны ниши для шкафов в детских. Отличная планировка ! Гардероб один правда но зато нормальный . Ну да, совсем без излишеств. Квартира на земле. Посилання на коментар Поділитися на інших сайтах More sharing options...
Narval Опубліковано: 8 травня 2020 Поділитись Опубліковано: 8 травня 2020 Ну да, совсем без излишеств. Квартира на земле. Ну давайте так - практически любой дом тут звучит как «одноквартирный дом» 12 квадратов спальня - 3*4 вполне удобная для одного мальчика, многие рисуют и того меньше. 100 квадратов квартира достаточно не маленькая, в 9ти этажках советских 4х комнатные квартиры они По 70м, в 16 этажках по 80 и людям кажутся большими. Терасса добавляет летней площади. 10 Посилання на коментар Поділитися на інших сайтах More sharing options...
ARCH INNOVATION Опубліковано: 8 травня 2020 Поділитись Опубліковано: 8 травня 2020 Ну давайте так - практически любой дом тут звучит как «одноквартирный дом» 12 квадратов спальня - 3*4 вполне удобная для одного мальчика, многие рисуют и того меньше. 100 квадратов квартира достаточно не маленькая, в 9ти этажках советских 4х комнатные квартиры они По 70м, в 16 этажках по 80 и людям кажутся большими. Терасса добавляет летней площади. Так я и не спорю))) мало того, даже согласен. Посилання на коментар Поділитися на інших сайтах More sharing options...
Energon Опубліковано: 8 травня 2020 Поділитись Опубліковано: 8 травня 2020 Тесновато для 4-х, ну да в тесноте да не в обиде. Діти підростуть, вивчаться і розїдуться по всяких цікавим їм місцям. А для двух людей, місця буде більш чим достатньо, як по комфорту, комуналу і спробі його все обійти. 5 Посилання на коментар Поділитися на інших сайтах More sharing options...
ARCH INNOVATION Опубліковано: 8 травня 2020 Поділитись Опубліковано: 8 травня 2020 Діти підростуть, вивчаться і розїдуться по всяких цікавим їм місцям. А для двух людей, місця буде більш чим достатньо, як по комфорту, комуналу і спробі його все обійти. С таким подходом и дальновидностью, жить нужно в трёх минутах от супермаркета и в двух от больницы. 2 Посилання на коментар Поділитися на інших сайтах More sharing options...
Nic-олаевна Опубліковано: 8 травня 2020 Поділитись Опубліковано: 8 травня 2020 Дословно не помню, но кто-то из мудрых форумчан говорил, что дом надо строить "адекватных размеров", без дишнего " на всякий случай". Т.к. годы будут идти быстро, силы и заработки уже не те, а дом все так же будет требовать денег и обслуживания. У каждого понятие золотой середины свое, поэтому ТС, удачи в стройке и принятии правильных решений Добавлено через 2 минуты С таким подходом и дальновидностью, жить нужно в трёх минутах от супермаркета и в двух от больницы. Не, надо настроить, чтоб сразу с вертолетной площадкой и подземным бункером 11 Посилання на коментар Поділитися на інших сайтах More sharing options...
Narval Опубліковано: 8 травня 2020 Поділитись Опубліковано: 8 травня 2020 С таким подходом и дальновидностью, жить нужно в трёх минутах от супермаркета и в двух от больницы. Или на кладбище, а че уж там 1 Посилання на коментар Поділитися на інших сайтах More sharing options...
vadimv Опубліковано: 8 травня 2020 Поділитись Опубліковано: 8 травня 2020 Квартира на земле.Это типа плохо? Есть вот такое мнение 16:55 4 Посилання на коментар Поділитися на інших сайтах More sharing options...
nakolkin Опубліковано: 8 травня 2020 Поділитись Опубліковано: 8 травня 2020 Может глупый вопрос, а терасса на север - это норм? 1 Посилання на коментар Поділитися на інших сайтах More sharing options...
qawsed12qawse Опубліковано: 8 травня 2020 Поділитись Опубліковано: 8 травня 2020 Интересный проект. 1.Зачем врезка в дом справа вверху( видимо дизайнер насоветовал), получите огромный мост холода с верхнего армопояса в дом и конденсат. Ну и автоматом 3 угла вместо одного и колонна, с уменьшением полезной площади дома. 2. Ну и гардеробная конечно хорошо ,но вентиляцию нужно обеспечить качественную а то вещи застоятся. Както шкафы купе в комнатах до потолка практичней что ли. 3. Путь к гостевому санузлу лежит через кухню.И это в основном летне осеннем режиме с терассой. 4. 12 и 13м2 комнаты все-же маловаты для детей. Посилання на коментар Поділитися на інших сайтах More sharing options...
sktd Опубліковано: 8 травня 2020 Поділитись Опубліковано: 8 травня 2020 25 варіація на Z10. Непоганий проект. Крім терраси. Посилання на коментар Поділитися на інших сайтах More sharing options...
Рекомендовані повідомлення
Створіть акаунт або увійдіть у нього для коментування
Ви маєте бути користувачем, щоб залишити коментар
Створити акаунт
Зареєструйтеся для отримання акаунта. Це просто!
Зареєструвати акаунтУвійти
Вже зареєстровані? Увійдіть тут.
Увійти зараз