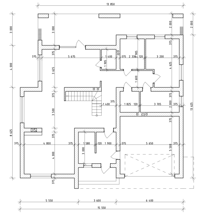
Bimerok Опубліковано: 31 жовтня 2021 Поділитись Опубліковано: 31 жовтня 2021 (змінено) Привіт. Сім"я з 4 дітьми. БІльше всього думали над першим поверхом, і малювали як будемо ходити. Досить багато часу витратив на цю тему, і відео різні дивився, але от хочеться ще почути зауваження. В цілому, хочеться якось так Із того, що вже зрозуміло - Гараж затісний; - Із гаража в будинок 1 двері; - Пишуть що монолітне перекриття на сьогодні - не найкраще рішення. Виключно із-за ціни ? Змінено 31 жовтня 2021 користувачем Bimerok Посилання на коментар Поділитися на інших сайтах More sharing options...
nosatiy Опубліковано: 31 жовтня 2021 Поділитись Опубліковано: 31 жовтня 2021 странно, почему считается, что 31,1м2 для гаража мало? только потому что хочется поставить в него 2 машины? Поставьте одну, которая нарисована справа. Посилання на коментар Поділитися на інших сайтах More sharing options...
nosatiy Опубліковано: 31 жовтня 2021 Поділитись Опубліковано: 31 жовтня 2021 дверь из гаража в дом я бы не делал, но Вам может и нравится это. перекрытие монолит только на 1 этаже, на втором можно просто подшить потолок. Посилання на коментар Поділитися на інших сайтах More sharing options...
shneider_vova Опубліковано: 31 жовтня 2021 Поділитись Опубліковано: 31 жовтня 2021 А план второго этажа где? Посилання на коментар Поділитися на інших сайтах More sharing options...
ДОКС Опубліковано: 31 жовтня 2021 Поділитись Опубліковано: 31 жовтня 2021 планування геть "не бюджетне"... тож чого переймаєтеся щодо вартості перекриття? Посилання на коментар Поділитися на інших сайтах More sharing options...
Bimerok Опубліковано: 31 жовтня 2021 Автор Поділитись Опубліковано: 31 жовтня 2021 35 хвилин тому, nosatiy сказав: странно, почему считается, что 31,1м2 для гаража мало? только потому что хочется поставить в него 2 машины? Поставьте одну, которая нарисована справа. Харош в сусідній темі навіть 36 квадратів кажуть замало. Піду ще раз поміряю свій гараж на 1 авто 34 хвилини тому, nosatiy сказав: дверь из гаража в дом я бы не делал, но Вам может и нравится это. перекрытие монолит только на 1 этаже, на втором можно просто подшить потолок. та якось без дверей не то. Посилання на коментар Поділитися на інших сайтах More sharing options...
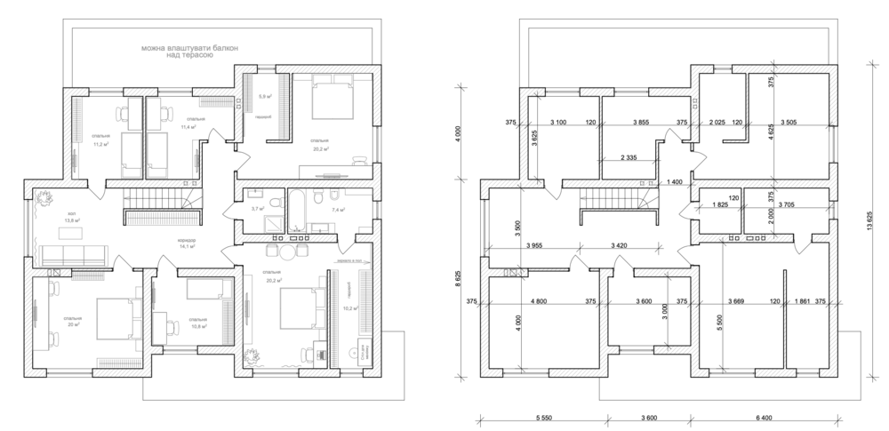
Bimerok Опубліковано: 31 жовтня 2021 Автор Поділитись Опубліковано: 31 жовтня 2021 26 хвилин тому, shneider_vova сказав: А план второго этажа где? додав, але цікавить в першу чергу перший поверх. На другому поверсі все максимально просто. Посилання на коментар Поділитися на інших сайтах More sharing options...
vadimv Опубліковано: 31 жовтня 2021 Поділитись Опубліковано: 31 жовтня 2021 (змінено) 27 хвилин тому, ДОКС сказав: планування геть "не бюджетне"... ...але при цьому якась куца драбина зі сходами віялом... Змінено 31 жовтня 2021 користувачем vadimv 3 Посилання на коментар Поділитися на інших сайтах More sharing options...
Bimerok Опубліковано: 31 жовтня 2021 Автор Поділитись Опубліковано: 31 жовтня 2021 1 хвилину тому, vadimv сказав: ...але при цьому якася куца драбина зі сходами віялом... так і запишемо. "Куца драбина" там мало місця для нормальних сходів ? Посилання на коментар Поділитися на інших сайтах More sharing options...
vadimv Опубліковано: 31 жовтня 2021 Поділитись Опубліковано: 31 жовтня 2021 Тільки що, Bimerok сказав: там мало місця для нормальних сходів ? Місця нібито дофіга, але драбину чомусь не вийшло намалювати нормального розміру з нормальними сходами. Посилання на коментар Поділитися на інших сайтах More sharing options...
Bimerok Опубліковано: 31 жовтня 2021 Автор Поділитись Опубліковано: 31 жовтня 2021 1 хвилину тому, vadimv сказав: Місця нібито дофіга, але драбину чомусь не вийшло намалювати нормального розміру з нормальними сходами. ага, ну тісно там не буде, зауваження виключно до того, як намалювали ? Посилання на коментар Поділитися на інших сайтах More sharing options...
vadimv Опубліковано: 31 жовтня 2021 Поділитись Опубліковано: 31 жовтня 2021 10 хвилин тому, Bimerok сказав: На другому поверсі все максимально просто. Та да, один душ на 5 кімнат а ванна тільки для хазяїв 1 Посилання на коментар Поділитися на інших сайтах More sharing options...
Bimerok Опубліковано: 31 жовтня 2021 Автор Поділитись Опубліковано: 31 жовтня 2021 Тільки що, vadimv сказав: Та да, один душ на 5 кімнат а ванна тільки для хазяїв так 2 душа Посилання на коментар Поділитися на інших сайтах More sharing options...
vadimv Опубліковано: 31 жовтня 2021 Поділитись Опубліковано: 31 жовтня 2021 1 хвилину тому, Bimerok сказав: зауваження виключно до того, як намалювали ? Зауваження до сходів: вони незручні і навіть можна сказати - небезпечні. 2 Посилання на коментар Поділитися на інших сайтах More sharing options...
vadimv Опубліковано: 31 жовтня 2021 Поділитись Опубліковано: 31 жовтня 2021 1 хвилину тому, Bimerok сказав: так 2 душа Де там 2 душа? Один душ для 5 кімнат і одна ванна для майстер-спальні. Все. 1 Посилання на коментар Поділитися на інших сайтах More sharing options...
BugS Опубліковано: 31 жовтня 2021 Поділитись Опубліковано: 31 жовтня 2021 Я бы подумал на счет практичности 3-х отдельных технических помещений на 1 этаже - кладовка, прачечная, котельная. Может, лучше их объединить в 2 или в 1 помещение. 2 Посилання на коментар Поділитися на інших сайтах More sharing options...
standov Опубліковано: 2 листопада 2021 Поділитись Опубліковано: 2 листопада 2021 (змінено) Очень режет глаз коридорчик на 4 двери на первом этаже, какое-то месиво проемов, явно шото не додумали. А ещё у вас судя по всему на втором этаже мастер-спальня прямо над гаражем, если уж гараж в доме то над ним лучше сделать что-то техническое или на крайняк "для тещи") - выхлоп, шум, грохот ворот, холод от перекрытия. Гараж это место для склада барахла, в вашем случае либо имхо не фантазировать про 2 машины либо добавить площадь которая сразу уйдет под велики/косилки/санки/керхеры/дрова/барбекюшницу и тп габаритные и очень нужные вещи. Я бы котельную завел через гараж, профиты: - минус дверь в коридорчике - больше места в гараже (котельная обычно не забита и там можно много чего лишнего хранить и при этом не таскать через весь дом) Не до конца понятная идея с двумя диванами на первом этаже, угловой в гостиной ок, какая функция у второго возле лестницы? Как 4 человека будут юзать два дивана? По очереди или как?) Если вы не придумали там ничего умнее то скорее всего что-то не так с этим помещением в принципе. Холл с диваном на втором этаже это что-то из прошлого века имхо, на втором этаже спят на первом живут, тем более с такой гостиной. Да у вас 4ро детей но я почему-то почти уверен что если они не захотят сидеть с вами то выберут скорее чью-то комнату. Пс. Слышал очень умную вещь, может вам будет полезно, когда детей больше одного то очень целесообразно одну спальню детскую заточить под "общую игровую". Дети мелкие любят спать толпой, а потом когда подростают игровая переделывается в личную детскую спальню Змінено 2 листопада 2021 користувачем standov 2 Посилання на коментар Поділитися на інших сайтах More sharing options...
tort Опубліковано: 3 листопада 2021 Поділитись Опубліковано: 3 листопада 2021 (змінено) В 31.10.2021 в 09:51, Bimerok сказал: БІльше всього думали над першим поверхом, і малювали як будемо ходити. Це дуже вірно, "малювали як будемо ходити". Для великих будинків це стає необхідним у буквальному сенсі. Один зі способів перевірити практичність планування, це промалювати на плані з меблями повсякденний послідовний шлях на основі вашого режиму, починаючи зранку, як ви прокинулися і йдете від ліжка до ванни, а потім на кухню снідати і тд. Послідовно! Берете як мінімум два сценарії - робочого дня та вихідного і олівцем калякаєте. А краще вихідний день, коли ви працюєте по дому і вихідний день коли відпочиваєте, відокремити. Як правило то субота та неділя. Шлях має бути коротким як поетапно від пункту Л (ліжко) до пункту У (унітаз) так і в цілому, без замкнутих кругів навколо якогось центрального елементу, що перекриває простір на усю висоти від долу до стелі. Коли всі сценарії вашого життя намалювали, у вас вийде центральний "стовбур" з багатьох ліній центральної комунікації з розведеними гілочками. Чи варто казати, що "стовбур" має бути коротким і не проходити крізь вузькі місця коридорів проходів, а петель на гілочках не повинно бути? точніше бажано їм там не бути. Там де ви будете кружляти навколо сходів там не буде уяви про цілісність простору вашого дому. Два поверхи і без того вже ділять простір інтер'єру, а сходи ділять кухонну зону від передпокою зі столовою та вітальнею. Це на любителя, але в світі ніби перевагу набирають лофти, приміщення зі змішаною універсальною функцією і єдиним простором. Професори Преображенські, що хочуть собі окрему операційну, на цьому тлі виглядають архаіками, вони і тоді були рідкими винятками. Звісно якщо хтось з вас буде користуватися кабінетом принаймні 8/24г 5/7д то він вам безперечно потрібен. Будинок багатий, але усвідомте що він вам приблизно на 15 років того укладу, що ви зараз маєте. Потім діти виростуть. Чи вартий він отаких витрат? податки та опалення я так розумію вас не лякають взагалі? Дуже не звично зустріти таких людей на форумах "спроектуй/побудуй собі сам", якщо чесно. Змінено 3 листопада 2021 користувачем tort 4 Посилання на коментар Поділитися на інших сайтах More sharing options...
Bimerok Опубліковано: 3 листопада 2021 Автор Поділитись Опубліковано: 3 листопада 2021 Дякую Цитата Очень режет глаз коридорчик на 4 двери на первом этаже, какое-то месиво проемов, явно шото не додумали. так, були двері з гаража, переробили з коридора. Туди ходити часто не планую, можливо дійсно в гараж їх зробити. Цитата А ещё у вас судя по всему на втором этаже мастер-спальня прямо над гаражем, если уж гараж в доме то над ним лучше сделать что-то техническое или на крайняк "для тещи") - выхлоп, шум, грохот ворот, холод от перекрытия. ну тут обійти ніяк, це та сторона будинку, де точно буде мастер спальня. А гараж зліва не буде точно. Може додатково шумо вібро ізоляцію зроблю. Цитата Гараж это место для склада барахла, в вашем случае либо имхо не фантазировать про 2 машины либо добавить площадь которая сразу уйдет под велики/косилки/санки/керхеры/дрова/барбекюшницу и тп габаритные и очень нужные вещи. та в мене є ще 2 технічні будівлі на участку, майстерня та будівля для велосипедів, там же буде гума, хімія + мийка і все інше автобарахло. В моєму випадку в гаражі будуть авто і щось саме необхідне, щоб було під рукою. Цитата Не до конца понятная идея с двумя диванами на первом этаже, угловой в гостиной ок, какая функция у второго возле лестницы? Как 4 человека будут юзать два дивана? По очереди или как?) Если вы не придумали там ничего умнее то скорее всего что-то не так с этим помещением в принципе. 100%% підмітили вірно. то приліпили "щоб було". Дружина вже його звідти викреслила ))) Цитата Холл с диваном на втором этаже это что-то из прошлого века имхо, на втором этаже спят на первом живут, тем более с такой гостиной. теж думав, таке місце що там нічого і не оргазуєш і потреби немає. Вирішили просто холл Цитата Да у вас 4ро детей но я почему-то почти уверен что если они не захотят сидеть с вами то выберут скорее чью-то комнату. та по різному. Часто хочуть побути самі, часто грають таки разом + дистанційне навчання. Ввечері пограти та на вихідних - то так. Цитата Пс. Слышал очень умную вещь, может вам будет полезно, когда детей больше одного то очень целесообразно одну спальню детскую заточить под "общую игровую". Дети мелкие любят спать толпой, а потом когда подростают игровая переделывается в личную детскую спальню Саме така ідея з 20 метровою спальнею. Посилання на коментар Поділитися на інших сайтах More sharing options...
Bimerok Опубліковано: 3 листопада 2021 Автор Поділитись Опубліковано: 3 листопада 2021 2 години тому, tort сказав: Це дуже вірно, "малювали як будемо ходити". Для великих будинків це стає необхідним у буквальному сенсі. Один зі способів перевірити практичність планування, це промалювати на плані з меблями повсякденний послідовний шлях на основі вашого режиму, починаючи зранку, як ви прокинулися і йдете від ліжка до ванни, а потім на кухню снідати і тд. Послідовно! Берете як мінімум два сценарії - робочого дня та вихідного і олівцем калякаєте. А краще вихідний день, коли ви працюєте по дому і вихідний день коли відпочиваєте, відокремити. Як правило то субота та неділя. Шлях має бути коротким як поетапно від пункту Л (ліжко) до пункту У (унітаз) так і в цілому, без замкнутих кругів навколо якогось центрального елементу, що перекриває простір на усю висоти від долу до стелі. Коли всі сценарії вашого життя намалювали, у вас вийде центральний "стовбур" з багатьох ліній центральної комунікації з розведеними гілочками. Чи варто казати, що "стовбур" має бути коротким і не проходити крізь вузькі місця коридорів проходів, а петель на гілочках не повинно бути? точніше бажано їм там не бути. Там де ви будете кружляти навколо сходів там не буде уяви про цілісність простору вашого дому. Два поверхи і без того вже ділять простір інтер'єру, а сходи ділять кухонну зону від передпокою зі столовою та вітальнею. Це на любителя, але в світі ніби перевагу набирають лофти, приміщення зі змішаною універсальною функцією і єдиним простором. Професори Преображенські, що хочуть собі окрему операційну, на цьому тлі виглядають архаіками, вони і тоді були рідкими винятками. Звісно якщо хтось з вас буде користуватися кабінетом принаймні 8/24г 5/7д то він вам безперечно потрібен. Будинок багатий, але усвідомте що він вам приблизно на 15 років того укладу, що ви зараз маєте. Потім діти виростуть. Чи вартий він отаких витрат? податки та опалення я так розумію вас не лякають взагалі? Дуже не звично зустріти таких людей на форумах "спроектуй/побудуй собі сам", якщо чесно. дякую за коментар, дуже слушно. Якраз у нас так вийшло, що всі хочуть собі операційну. Кабінет потрібен на 24\7. Ну і не розумію, що такого у страшного у опаленні чи податках? Он газ по 28 грн за куб для юр осіб, та отопити 500 квадратів - ото да. Посилання на коментар Поділитися на інших сайтах More sharing options...
normal Опубліковано: 3 листопада 2021 Поділитись Опубліковано: 3 листопада 2021 (змінено) 6 часов назад, tort сказал: усвідомте що він вам приблизно на 15 років того укладу, що ви зараз маєте. Потім діти виростуть Главное, что на первом этаже есть кабинет и комната с камином, через 15 лет просто перенесут в них кровати, а на лестницу добавят дверь - и все станет пучком, с минимумом усилий! А я бы и 15 дней на втором этаже не прожил: это с кровати к холодильнику или просто кота выпустить на улицу, то каждый раз делать 100-метровку с препятствиями Можно было и раскошелится на одноэтажник с 4-мя спальнями Змінено 3 листопада 2021 користувачем normal 1 Посилання на коментар Поділитися на інших сайтах More sharing options...
standov Опубліковано: 3 листопада 2021 Поділитись Опубліковано: 3 листопада 2021 1 час назад, normal сказал: Главное, что на первом этаже есть кабинет и комната с камином, через 15 лет просто перенесут в них кровати, а на лестницу добавят дверь - и все станет пучком, с минимумом усилий! А я бы и 15 дней на втором этаже не прожил: это с кровати к холодильнику или просто кота выпустить на улицу, то каждый раз делать 100-метровку с препятствиями Можно было и раскошелится на одноэтажник с 4-мя спальнями сдать в аренду и на пенсию к морьку ) Посилання на коментар Поділитися на інших сайтах More sharing options...
yty1973 Опубліковано: 11 листопада 2021 Поділитись Опубліковано: 11 листопада 2021 А мені ріже око кухня. Недопродумано чи що… плюс що передбачили кладовку. Але наприклад особисто мені напрошується все-таки мийку та поверхню виніс би на той острівець. Зробив би його більшим. Тоді холодильник та всю кухонну техніку перенести на те місце де зараз мийка та поверхня. Бо зараз якось мало місця для всіх кухонних девайсів. Сходи треба робити більш продуманішими, вони значно більше місця займуть. Ванн замало, подумайте замінити на першому поверсі ванну з пральною. Другий поверх - видно, що вам треба продумувати. 1 Посилання на коментар Поділитися на інших сайтах More sharing options...
Savcha Опубліковано: 12 грудня 2021 Поділитись Опубліковано: 12 грудня 2021 Загалом планування виглядає хаотичним. Наче дорізали по шматочку потроху до стартової зони. На що хотілося би звернути увагу: 1. Гараж в об'ємі будинку - дуже нераціональне рішення: зростає будівельний об'єм; використовуються більш товстіші огороджуючі конструкції, навіть якщо опалення гаражу не передбачається; перекриття в вашому варіанті на відміну від прибудованого чи окремо розташованого гаражу, де можливо просто накрити покрівлею, вимагає додаткових 6-7 кубів бетону; вихлопні гази все одно розповсюджуються будинком не зважаючи на пароїзоляцію. 2. Двері з гаражу до тамбуру не потрібні: відстань від гаражних воріт до вхідних дверей май же така ж сама, а захищенні двері будуть потрібні. Можливо при гаражі не вистачає комори чи додаткової площі для розміщення всякого-різного. 3. Дуже дивне розташування каміну між вітальнею і їдальнею. Заради нього цілий пілон зводиться, а видовищність каміну не збільшується. Тут проситься або двосторонній наскрізний камін, або камін притиснутий до зовнішньої стіни на місці пілона і поєднання їдальні та вітальні. 4. Затісна кухня, як вже зауважували в темі, при такий площі майже немає робочої поверхні. Використовувати для цього острівець не доречно - забігаєтесь (постіний рух від нього до плити, мийки та холодильника). 5. Майже всі шафи в гардеробних і спальнях завузькі - менше 600-700 мм. 6. Сходи десь 800 мм шириною? Замало. Треба не менше 900, особливо коли всі спальні на другому поверсі і буде постійний рух сходами. Також для такого будинку економити на сходах і робити забіжні сходинки - то економія на собі. І взагалі не факт, що так по сходах можна буде пройти (під шафою другого поверху). 7. Дуже багато якихось закомарків, коридорчиків, що додають площі і загальних габаритів. При цьому чимало несучих внутрішніх стін, що обмежать перепланування надалі. 8. Як вже відмічали, замало санвузлів на таку кількість мешканців. І здається душові піддони теж не дуже великі. А крім вентканалів бажано одразу передбачати місця під стояки і фанові труби. 9. Вітальня явно замала. Потрібно десь 25-30 м2 щонайменше. В 31.10.2021 в 09:51, Bimerok сказал: - Пишуть що монолітне перекриття на сьогодні - не найкраще рішення. Виключно із-за ціни ? Не зовсім. З таким вільним плануванням - монолітне перекриття єдиний варіант. Розкласти плити може і можливо, але кількість балок з'їсть всю економію. До того ж монтажні роботи вимагають машино/годин крану і не факт, що збірне перекриття буде в такому разі дешевше. Моноліт практичніше, хоча і вимагає геморою з опалубкою. 1 Посилання на коментар Поділитися на інших сайтах More sharing options...
Музей Опубліковано: 12 грудня 2021 Поділитись Опубліковано: 12 грудня 2021 (змінено) Приємно бачити такі проекти на форумі. Перший поверх в цілому подобається, але є кілька деталей, на які варто звернути увагу. Передпокій. Двері з тамбуру в зону сходин зайві. За такого розміру будинку, на тепловтрати вони не вплинуть. Перестінок теж зайвий. Краще дати якнайбільше місця під шафи для верхнього одягу, взуття, сумок, а в центрі поставити банкетку, щоб могли присісти двоє. Камін. Розташування, як на кресленні не найкраще. Під час роботи каміна, сидіти за обіднім столом буде не надто комфортно. Крім того, камін нагріватиме зовнішню стіну. Розумію, що камін не заради нагріву, але використовувати варто раціонально. В моєму будинку теж кутова топка, але встановлена таким чином, щоб бачити горіння, як з зони відпочинку, так і з столової. Кухня. Холодильник надто далеко від робочої поверхні з мийкою та плитою. Кладова в кухні дуже сумнівна мода. З того, що зображено на планах, місць зберігання на кухні катастрофічно мало. Значить, більшість речей зберігатимуться в кладовій. СтопіЦЦот раз відчинити- зачинити двері в кладову? О ні.... При такій кількості спальних місць (я нарахувала 9), Вам потрібна дуже велика кухня і не один холодильник. Навіть при тому, що немає необхідності все готувати на власній кухні, на мій погляд, кухня замала, а робоча поверхня просто катастрофічно мала. Уважно придивіться до планувань в будинках з такою відкритою кухонною зоною, як на Ваших планах. Ви побачите там другу кухню, за щільними дверима. Саме там готують. А у відкриті зоні лише "нарізають салатіки". Другий поверх суцільні недоліки. Тут вже писали про кількість санвузлів. Ванна кімната сумісна з унітазом навіть для двох не є зручно, але малесенька кімнатка з душовою, рукомийником та горщиком на 7!!! осіб це просто жесть. Але Ви вже покарали себе за таке рішення, розташувавши цей санвузол за стіною власної спальни. Ваша сім'я закінчить "водні процедури" якраз під ранок. Тераса. Довга і вузька. Дощі заливатимуть меблі, а сонце не дозволить користуватися терасою в повній мірі. Змінено 12 грудня 2021 користувачем Музей 1 Посилання на коментар Поділитися на інших сайтах More sharing options...
Рекомендовані повідомлення
Створіть акаунт або увійдіть у нього для коментування
Ви маєте бути користувачем, щоб залишити коментар
Створити акаунт
Зареєструйтеся для отримання акаунта. Це просто!
Зареєструвати акаунтУвійти
Вже зареєстровані? Увійдіть тут.
Увійти зараз