Денис0201 Опубліковано: 17 травня 2023 Поділитись Опубліковано: 17 травня 2023 7 часов назад, ЯД сказал: Могу порекомендовать тех, что мне делали. Таких трабл, как у Sly небыло, сделали хорошо. Минус только что дольше, чем обычно. Правда хз что они сейчас, может заняты уже Буду вдячний за контакти. Посилання на коментар Поділитися на інших сайтах More sharing options...
blacktigra Опубліковано: 17 травня 2023 Поділитись Опубліковано: 17 травня 2023 Мені коробку та фундамент будувала бригада з Тарасівки, але це було 8 років тому. На той час міг би рекомендувати, як вони зараз не знаю, треба спілкуватися. Віктор +38О96756ОО48 Посилання на коментар Поділитися на інших сайтах More sharing options...
newbee2020 Опубліковано: 17 травня 2023 Поділитись Опубліковано: 17 травня 2023 в мене стіни та дах теж гарна бригада робила, яка в тих краях працює. якщо треба контакт - лс Посилання на коментар Поділитися на інших сайтах More sharing options...
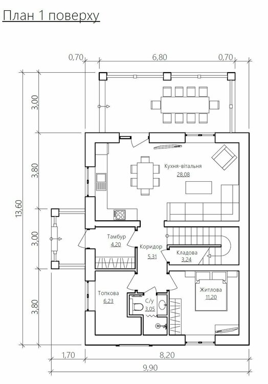
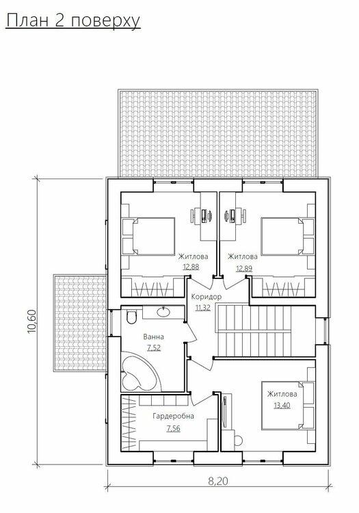
dragon200 Опубліковано: 17 травня 2023 Автор Поділитись Опубліковано: 17 травня 2023 (змінено) Сьогодні таки придбав проект, купляв у місцевого архітктора по рекомендації, приємна людина все розказав показав, пояснив і т.д. запевнив що надасть будь які консультації по проекту і будівництву, споіва.сь що так і буде. По будинку. шукав самий звичайний та простий, так як планую будуватись сам! ітого 130м2 2 повноцінних поверхи, плитне перекриття, тераса. якось так. + ситуаційний план та схема намірів забудови. по ціні вийшло 10 000грн Також в приватні повідомлення писало багато місцевих (форумських) архітекторів, теж приємні люди по спілкуванню, скидали проекти будинків, доречі реально круті, і по ціні варіанти були нижче ніж придбав я, але нажаль чи на щастя я вже був в процесі розробки цього проекту, тому як є так є, вибачайте Треба було мені раніше створювати тему, і раніше розглядати пропозиції... Змінено 17 травня 2023 користувачем dragon200 2 Посилання на коментар Поділитися на інших сайтах More sharing options...
dragon200 Опубліковано: 17 травня 2023 Автор Поділитись Опубліковано: 17 травня 2023 (змінено) В 16.05.2023 в 12:20, sly сказал: могу подсказать классного экскаваторщика Васю на jcb. Работает быстро и ювелирно. Живет в Белогородке, в радиусе 20 км точно приезжает. Выкопать фундамент/ септик/ спланировать участок / выровнять дорогу - легко и быстро. О6792ОО8О8 Василь. Из Малютянки можно позвать Сергея О679О41385 (Камаз, газон, доставка и вывоз грунта/песка/щебня) - они часто работают с Василием в связке и между собой могут договориться. (По опыту простой JCB из-за нерасторопного камазиста может вылиться в нехилую сумму). В номерах телефонов букву "О" - заменить на нули. по контакту що дав sly, зателефонував трактористу, він озвучив дуже смішну ціну за роботу (у порівнянні із тим що я прозвонював в інтернеті), хз, може він не так мене зрозумів. подивимось +- завтра планую робити планування. Змінено 17 травня 2023 користувачем dragon200 Посилання на коментар Поділитися на інших сайтах More sharing options...
sly Опубліковано: 17 травня 2023 Поділитись Опубліковано: 17 травня 2023 16 минут назад, dragon200 сказал: він озвучив дуже смішну ціну за роботу яку саме? він зазвичай бере погодинно. Але працює ну дуже швидко, тому виходить дуже гарна ціна. Ми тільки його всім кооперативом вже багато років викликаємо. Посилання на коментар Поділитися на інших сайтах More sharing options...
standov Опубліковано: 17 травня 2023 Поділитись Опубліковано: 17 травня 2023 3 часа назад, dragon200 сказал: і по ціні варіанти були нижче ніж придбав забавне, шо форумні архитектори справді цікаві і проработані проекти за дешевше 10тис скидали? чи то мова про ескізну частину? 1 Посилання на коментар Поділитися на інших сайтах More sharing options...
dragon200 Опубліковано: 18 травня 2023 Автор Поділитись Опубліковано: 18 травня 2023 10 часов назад, standov сказал: забавне, шо форумні архитектори справді цікаві і проработані проекти за дешевше 10тис скидали? чи то мова про ескізну частину? Типові готові проекти. Ціни від 5 до 20 тис. Посилання на коментар Поділитися на інших сайтах More sharing options...
dragon200 Опубліковано: 18 травня 2023 Автор Поділитись Опубліковано: 18 травня 2023 13 часов назад, sly сказал: яку саме? 2500грн сказав, хоча може то він мав на увазі за годину 🤣 Посилання на коментар Поділитися на інших сайтах More sharing options...
sly Опубліковано: 18 травня 2023 Поділитись Опубліковано: 18 травня 2023 (змінено) 3 минуты назад, dragon200 сказал: 2500грн сказав, хоча може то він мав на увазі за годину 🤣 година в нього 450 була останнього разу. Плюс доїхати, якщо не повна зміна. Норм ціна. Я також кожного разу перепитую, коли розраховуюсь ) Василю привіт з Рябінок Змінено 18 травня 2023 користувачем sly Посилання на коментар Поділитися на інших сайтах More sharing options...
dragon200 Опубліковано: 18 травня 2023 Автор Поділитись Опубліковано: 18 травня 2023 21 минуту назад, sly сказал: година в нього 450 була останнього разу. Плюс доїхати, якщо не повна зміна. Норм ціна. Я також кожного разу перепитую, коли розраховуюсь ) Василю привіт з Рябінок Зрозумів, подивимось, бо на обох і по сайтах мені озвучували ціну в 6-8 тис. Привіт передам 👍 Може ще порекомендуєте де в цьому районі купляти арматуру? Посилання на коментар Поділитися на інших сайтах More sharing options...
DimaF Опубліковано: 18 травня 2023 Поділитись Опубліковано: 18 травня 2023 3 часа назад, dragon200 сказал: 2500грн сказав, хоча може то він мав на увазі за годину 🤣 Да ну👻 Месяц назад товарищ заказывал по месту 2к, за 2 часа. 1 Посилання на коментар Поділитися на інших сайтах More sharing options...
standov Опубліковано: 18 травня 2023 Поділитись Опубліковано: 18 травня 2023 5 часов назад, DimaF сказал: 2к, за 2 часа зазвичай в трактора мінімалка "пів-зміни" тож шо 2 шо 4 години буде 2к. ну в нас так Посилання на коментар Поділитися на інших сайтах More sharing options...
Astrolog_ua Опубліковано: 19 травня 2023 Поділитись Опубліковано: 19 травня 2023 В 17.05.2023 в 21:54, dragon200 сказал: по контакту що дав sly, зателефонував трактористу, він озвучив дуже смішну ціну за роботу (у порівнянні із тим що я прозвонював в інтернеті), хз, може він не так мене зрозумів. подивимось +- завтра планую робити планування. По Вишгородському району трактори: 2 години - 3 000 грн 4 години (півсмвни) - 5 000 8 годин (сміна) - 8 000 1 Посилання на коментар Поділитися на інших сайтах More sharing options...
dragon200 Опубліковано: 21 травня 2023 Автор Поділитись Опубліковано: 21 травня 2023 В 19.05.2023 в 10:28, Astrolog_ua сказал: По Вишгородському району трактори: 2 години - 3 000 грн 4 години (півсмвни) - 5 000 8 годин (сміна) - 8 000 хз, те що знаходив на ОЛХ і в інтернеті - мнімум пів зміни - 4000грн. а так десь ходити по селу, шукати трактор у часників, я не знаю як це. Посилання на коментар Поділитися на інших сайтах More sharing options...
dragon200 Опубліковано: 21 травня 2023 Автор Поділитись Опубліковано: 21 травня 2023 19,05,23 приїзджав трактор, водій реально PROFESSIONAL, наче народився в тракторі 😁, все зробив дуже якісно і швидко. Видалив всі дерева / кущі, розрівняв в'їзд на ділянку і саму ділянку, зробив планування під будинок! Загалом я залишився дуже задоволений! скоріш за все буду як мінімум користуватися його послугами для риття траншеї під фундамент. Ціна 2000 грн. 2 1 Посилання на коментар Поділитися на інших сайтах More sharing options...
dragon200 Опубліковано: 21 травня 2023 Автор Поділитись Опубліковано: 21 травня 2023 Вчора накупив рулеток, мотузок, маркерів і колишків - їздив розмічати фундамент. Наче все дуже просто в теорії але на місці дуже довго довбався. так як робив це один. Години за 2-3 наче все виставив +- нормально, але діагоналі пляшуть по +-1см, ХЗ як там міряти, наче міряєш норм, потім натягуєш ту рулетку щоб не провисала вже не норм, і навпаки. Але я думаю що і так буде нормально головне потім на опалубці все виставити ідеально Фото не робив бо навіть не думав про це. ⚡ПИТАННЯ⚡ Покищо ніяких документів я не подавав нікуди (планую на наступному тиджні зайнятися), чи можу я почати рити траншеї під фундамент але поки не заливати? Чи реба подати документи і отримати будівельний паспорт, надіслати повідомлення про початок будівельних робіт і вже тільки потім щось рити? Просто на це все як мінімум піде днів 15 - 30, а я за чей час думаю вже з фундаментом щось вирішити міг би. 2 Посилання на коментар Поділитися на інших сайтах More sharing options...
Drosselbeere Опубліковано: 21 травня 2023 Поділитись Опубліковано: 21 травня 2023 20 хвилин тому, dragon200 сказав: Чи реба подати документи і отримати будівельний паспорт, надіслати повідомлення про початок будівельних робіт і вже тільки потім щось рити? правильно так зробити 20 хвилин тому, dragon200 сказав: Просто на це все як мінімум піде днів 15 - 30 якщо отримувати будпаспорт в міцевомц відділі містобудування та архітектури, а може і довше 17.05.2023 в 20:47, dragon200 сказав: купляв у місцевого архітктора по рекомендації, приємна людина все розказав показав, пояснив і т.д. запевнив що надасть будь які консультації по проекту і будівництву так зверніться до свого архітектора, щоб він зареестрував ескіз намірів забудовника в ЄДЕССБ, а потім подайте самі через дію повідомлення про пачаток будівельних, це займе максимум 2 дні, та будуйте собі на здоров'я знаходячись в законному полі 5 Посилання на коментар Поділитися на інших сайтах More sharing options...
Astrolog_ua Опубліковано: 21 травня 2023 Поділитись Опубліковано: 21 травня 2023 32 минуты назад, dragon200 сказал: Покищо ніяких документів я не подавав нікуди (планую на наступному тиджні зайнятися), чи можу я почати рити траншеї під фундамент але поки не заливати? Чи реба подати документи і отримати будівельний паспорт, надіслати повідомлення про початок будівельних робіт і вже тільки потім щось рити? Просто на це все як мінімум піде днів 15 - 30, а я за чей час думаю вже з фундаментом щось вирішити міг би. Будуйтесь і робіть доки паралельно. Я все робив через дію. Купляв тіки будпаспорт бо лінь було самому возитися. 2 Посилання на коментар Поділитися на інших сайтах More sharing options...
dragon200 Опубліковано: 21 травня 2023 Автор Поділитись Опубліковано: 21 травня 2023 (змінено) 26 минут назад, Astrolog_ua сказал: Будуйтесь і робіть доки паралельно. Я все робив через дію. Купляв тіки будпаспорт бо лінь було самому возитися. Зрозумів, дякую. хвилююсь щоб не було проблем типу чого будуєшся без документів і т.д., хоча думаю наврядче хтось буде ходити щось перевіряти. ДОРЕЧІ щойно подав заяву на БУДПАСПОРТ через ДІЮ, за 5 хв, наче все прийнято, тепер чекаю, дуже цікаво що з цього вийде, реально 5 хв зайняло. тепер дивлюсь тут же в ДІЇ є "Повідомлення про початок будівельних робіт на підставі будпаспорта" це я так розумію можна подавати після отримання будівельно паспорта і цей документ теж є обов,язковим. і ще бачу є якийсь "Повідомлення про початок підготовчих робіт" - що воно таке? чи треба мені його робити? Змінено 21 травня 2023 користувачем dragon200 Посилання на коментар Поділитися на інших сайтах More sharing options...
Astrolog_ua Опубліковано: 21 травня 2023 Поділитись Опубліковано: 21 травня 2023 33 минуты назад, dragon200 сказал: "Повідомлення про початок підготовчих робіт" Це ви робите підготовчі роботи, 500-ку, на її основі будпаспорт, на основі будпаспорта повідомляєте про початок робіт. принаймні в 2021му я робив так. Посилання на коментар Поділитися на інших сайтах More sharing options...
dragon200 Опубліковано: 21 травня 2023 Автор Поділитись Опубліковано: 21 травня 2023 5 минут назад, Astrolog_ua сказал: Це ви робите підготовчі роботи, 500-ку, на її основі будпаспорт, на основі будпаспорта повідомляєте про початок робіт. Дія в мене наче і так прийняла документи на будпаспорт. Там 500 і ніяких викопіювань вона не просила... 1 Посилання на коментар Поділитися на інших сайтах More sharing options...
Astrolog_ua Опубліковано: 21 травня 2023 Поділитись Опубліковано: 21 травня 2023 Только что, dragon200 сказал: Дія в мене наче і так прийняла документи на будпаспорт. Там 500 і ніяких викопіювань вона не просила... Якщо зараз і будпаспорт можна через дію - то взагалі супер. 1 1 Посилання на коментар Поділитися на інших сайтах More sharing options...
Drosselbeere Опубліковано: 21 травня 2023 Поділитись Опубліковано: 21 травня 2023 5 хвилин тому, Astrolog_ua сказав: Це ви робите підготовчі роботи, 500-ку, на її основі будпаспорт для того щоб зробити 500 повідомлення не потрібне 9 хвилин тому, Astrolog_ua сказав: принаймні в 2021му я робив так. от тільки навіщо))))), но це вже не має значення 40 хвилин тому, dragon200 сказав: "Повідомлення про початок підготовчих робіт" це потрібно коли ви плануєте робити демонтаж будівлі або прокласти зовнішні комунікаціі... і це передбачено більш для громадських, житлових багатоквартирних, комерційних будівель і тд, приватна забудова як правило не потребує підготовчих робіт 44 хвилини тому, dragon200 сказав: ДОРЕЧІ щойно подав заяву на БУДПАСПОРТ через ДІЮ, за 5 хв, наче все прийнято чекайте на відповідь, через 10 днів в кращому випадку отрамаєте буд паспорт, а взагалі в більшості відмову і потів знову... 1 година тому, Drosselbeere сказав: зверніться до свого архітектора, щоб він зареестрував ескіз намірів забудовника в ЄДЕССБ, а потім подайте самі через дію повідомлення про пачаток будівельних, це займе максимум 2 дні, та будуйте собі на здоров'я знаходячись в законному полі так буде однозначно швидше якщо немає ніяких перешкод по типу не той зонінг або не відповідність генплану 1 Посилання на коментар Поділитися на інших сайтах More sharing options...
Drosselbeere Опубліковано: 21 травня 2023 Поділитись Опубліковано: 21 травня 2023 7 хвилин тому, dragon200 сказав: Дія в мене наче і так прийняла документи на будпаспорт. Там 500 і ніяких викопіювань вона не просила... так це просто інструмент, через який ви подаєте відомості, заяву і тд. всі данні все одно обробляються відділом містобудування та архітектури і як ітог, це відмова або надання будівельного паспорта, ну це ви будете знати за два тижня Посилання на коментар Поділитися на інших сайтах More sharing options...
Рекомендовані повідомлення
Створіть акаунт або увійдіть у нього для коментування
Ви маєте бути користувачем, щоб залишити коментар
Створити акаунт
Зареєструйтеся для отримання акаунта. Це просто!
Зареєструвати акаунтУвійти
Вже зареєстровані? Увійдіть тут.
Увійти зараз