Yull Опубліковано: 8 серпня 2024 Поділитись Опубліковано: 8 серпня 2024 50 минут назад, Gonchik сказал: Це чому раптом? З язика зняли. Ба більше - серед тих каркасних багато якраз проектів таких відпочинкових з сауною. Вузькуватий як на мене. Так, і ціна що немало важливо, значно нижча ніж класичне будівництво. 1 Посилання на коментар Поділитися на інших сайтах More sharing options...
SychiyKit Опубліковано: 8 серпня 2024 Автор Поділитись Опубліковано: 8 серпня 2024 28 минут назад, Vstar сказал: Щоб не вийшло, планувалось як гостьовий а вийде як основний після будівництва. Ймовірно автор не розуміє Масштаби і фінанси. ІМХО: Було б достатньо коштів, замовляв би проект а не сам ваяв. Для того і зроблено пост, люди оцінять та дадуть свої рекомендації, зберу все в купу і піду до архітектора за проектом чи просто законсервую до кращих часів. 1 Посилання на коментар Поділитися на інших сайтах More sharing options...
Vstar Опубліковано: 8 серпня 2024 Поділитись Опубліковано: 8 серпня 2024 2 хвилини тому, SychiyKit сказав: Для того і зроблено пост, люди оцінять та дадуть свої рекомендації, зберу все в купу і піду до архітектора за проектом чи просто законсервую до кращих часів. Найгірше в будівництві - недобудова. Позапланових витрат йде майже стільки як основних. Враховуйте все добре. Запропонований варіант, що зараз, то пустотратство. Хочете самі робити проект, дуже добре, почніть з бази, посадіть забудову на зйомку м1:500, розмістіть господарські приміщення (якщо потрібно окремо), вівід комунікацій, підїзд/прохід і т. д. . Як визначетесь з зовнішніми габаритами будівель, розпочинайте детальне планування. Бажаю успіхів! 1 Посилання на коментар Поділитися на інших сайтах More sharing options...
normal Опубліковано: 8 серпня 2024 Поділитись Опубліковано: 8 серпня 2024 (змінено) Робіть основний будинок і заселяйтеся, з розрахунком, що взимку не будете бігати з тарілками по снігу\льоду між будинками, а влітку, що ніхто в тій сауні та будинку жаритись не буде, бо краще за столиком у садочку. І для закривання огірків літня кухня не обов'язкова... Краще мінімалізм і потім добудова по потребі, ніж зразу весь комплекс і купа зайвого з постійним прибиранням та опаленням Змінено 8 серпня 2024 користувачем normal 4 Посилання на коментар Поділитися на інших сайтах More sharing options...
i.may Опубліковано: 8 серпня 2024 Поділитись Опубліковано: 8 серпня 2024 4 години тому, normal сказав: зразу весь комплекс це ще не комплекс. Бракує будинку прислуги 😆 Посилання на коментар Поділитися на інших сайтах More sharing options...
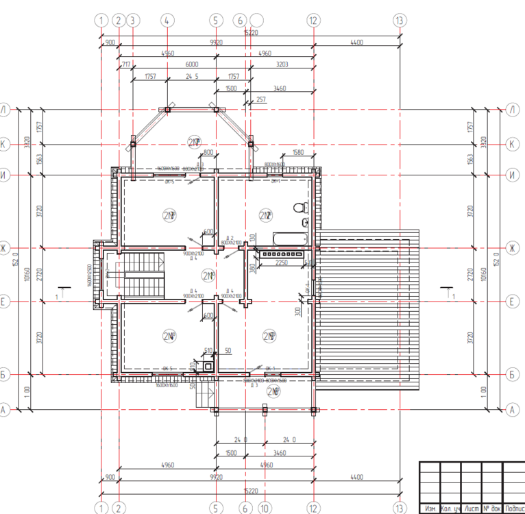
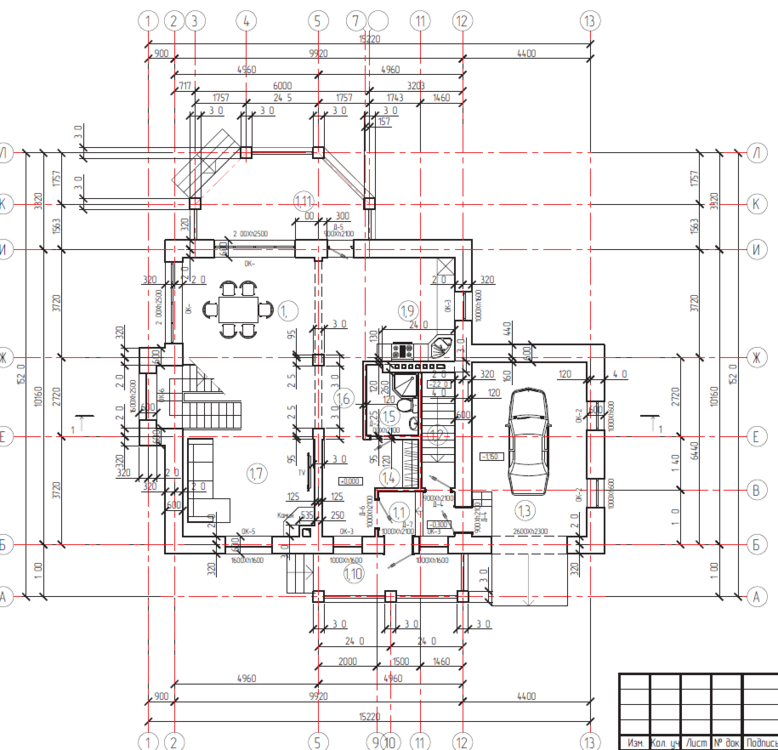
SychiyKit Опубліковано: 8 серпня 2024 Автор Поділитись Опубліковано: 8 серпня 2024 (змінено) План будинку (основного додаю), 1 поверх та мансандра. По фінансам розумію, що космос, тому і розглядав спочатку господарську. Коментарі внесли свої правки і зрозуміло, що це зараз не на часі. Шрифт відсутній, тому і так відображає. Змінено 8 серпня 2024 користувачем SychiyKit Посилання на коментар Поділитися на інших сайтах More sharing options...
vadimv Опубліковано: 8 серпня 2024 Поділитись Опубліковано: 8 серпня 2024 1 година тому, SychiyKit сказав: План будинку (основного додаю) Тут хоча б гараж нормального розміру. Але чомусь немає кімнати на першому поверсі. І навіщось такий величезний санвузол на другому. Посилання на коментар Поділитися на інших сайтах More sharing options...
Alvalk Опубліковано: 9 серпня 2024 Поділитись Опубліковано: 9 серпня 2024 13 часов назад, SychiyKit сказал: План будинку (основного додаю), 1 поверх та мансандра. По фінансам розумію, що космос, тому і розглядав спочатку господарську. Коментарі внесли свої правки і зрозуміло, що це зараз не на часі. В основному будинку гараж, в "гостьовому" гараж. Ну один я ще можу зрозуміти (хоча це дорого і великого сенсу немає), але навіщо вам два? Що ви маєте проти навісів? Плюс отой "будинок для відпочинку" з'їсть левову частину вартості "основного". Тож будівництво основного відкладеться на невизначений термін. Може все ж таки є сенс зосередитися на основному? 4 Посилання на коментар Поділитися на інших сайтах More sharing options...
Vstar Опубліковано: 9 серпня 2024 Поділитись Опубліковано: 9 серпня 2024 14 годин тому, SychiyKit сказав: План будинку (основного додаю), 1 поверх та мансандра. То ще план підвалу додайте, раз вже сходи показали. "Краще синиця в руках, ніж журавель в небі", зніміть рожеві окуляри, будьте реалістом. Посилання на коментар Поділитися на інших сайтах More sharing options...
SychiyKit Опубліковано: 9 серпня 2024 Автор Поділитись Опубліковано: 9 серпня 2024 10 часов назад, Alvalk сказал: В основному будинку гараж, в "гостьовому" гараж. Ну один я ще можу зрозуміти (хоча це дорого і великого сенсу немає), але навіщо вам два? Що ви маєте проти навісів? Плюс отой "будинок для відпочинку" з'їсть левову частину вартості "основного". Тож будівництво основного відкладеться на невизначений термін. Може все ж таки є сенс зосередитися на основному? Дякую Вам чоловіче, направили в правильне русло, доступно і зрозуміло пояснили. Буду рухатись в напрямку будинку Посилання на коментар Поділитися на інших сайтах More sharing options...
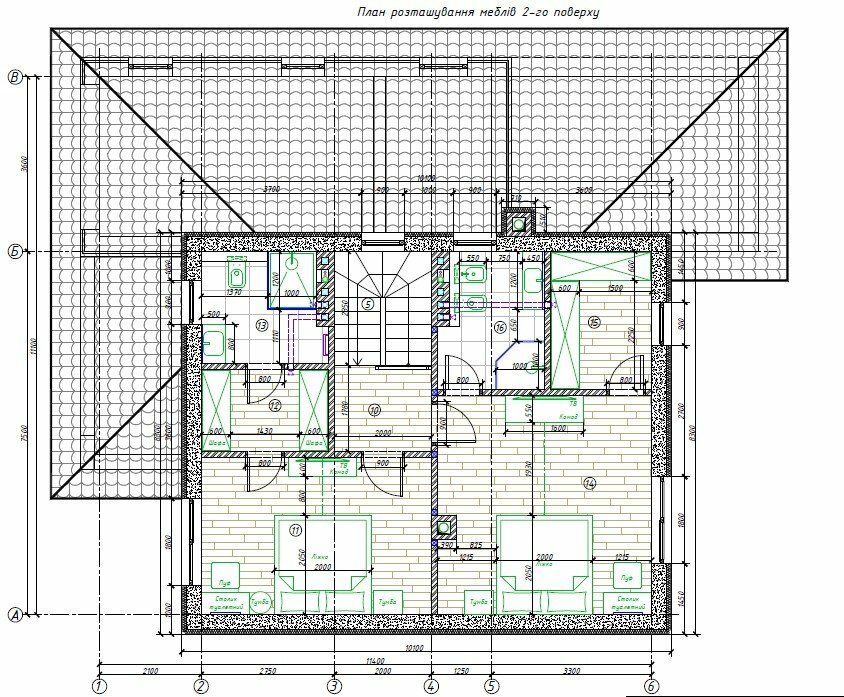
anabioz Опубліковано: 9 серпня 2024 Поділитись Опубліковано: 9 серпня 2024 (змінено) 1. Не будував би гостьового будиночку б ніколи, марна трата часу і грошей. Хочеться шашлику? Скважина, туалет типу "сортір", термобудка на 6,5 метрів. 2. Ото шо Вам намалювали - коментувати не буду, вже написали. Лише запропоную варіант, який вже побудований (не мною) і який мені подобається своєю ергономічністю. Є декілька зауважень, але не суттєві, як на мене. Може щось для себе знайдете корисного. Змінено 9 серпня 2024 користувачем anabioz 1 Посилання на коментар Поділитися на інших сайтах More sharing options...
SychiyKit Опубліковано: 13 серпня 2024 Автор Поділитись Опубліковано: 13 серпня 2024 Добрий день, Скільки по коштам +/- потягнув цей будинок? Якщо не секрет. Посилання на коментар Поділитися на інших сайтах More sharing options...
DimaF Опубліковано: 13 серпня 2024 Поділитись Опубліковано: 13 серпня 2024 В 09.08.2024 в 22:20, anabioz сказал: Хочеться шашлику? Скважина, туалет типу "сортір", термобудка на 6,5 метрів. Для этого и строить ничего не нужно. Старая советская дача подойдет с избытком для такого досуга..... Посилання на коментар Поділитися на інших сайтах More sharing options...
anabioz Опубліковано: 13 серпня 2024 Поділитись Опубліковано: 13 серпня 2024 (змінено) 7 годин тому, SychiyKit сказав: Добрий день, Скільки по коштам +/- потягнув цей будинок? Якщо не секрет. Можу запитати, але не менше 200К$. З мемблями і технікою. Змінено 13 серпня 2024 користувачем anabioz Посилання на коментар Поділитися на інших сайтах More sharing options...
tayatlas Опубліковано: 13 серпня 2024 Поділитись Опубліковано: 13 серпня 2024 В 07.08.2024 в 22:07, SychiyKit сказал: Добрий вечір, Цікавлять думки досвідченних по плануванню, та чи варто таке будувати? Гараж також буде слугувати як техічне приміщення (ел.щит, котел, бак, альтернативні джерела енергії). Дом, состоящий из парадоксов. 1) Площадь "жилых" помещений - ок. 30 м2, площадь "вспомогательных" (включая террасу) 60 м2 - в 2 раза больше !!! Абсолютно нелогично как для гостевого дома 2) Гараж в гостевом доме (чаще это ночевка на 1-2 ночи) ? Авто на улице не постоит 1-2 дня ? Да еще по площади почти равной суммарно спальне и гостиной ? "Оправдание" как технического помещения как то слабовато. Ну можно техпомещение в доме 8-10-12 м2. Но почти 27 ??? 3) Терраса в гостевом доме ? Ну если учесть, что гости приехали к хозяевам, то и "тусоваться" они будут вместе с хозяевами.... И отдельная терраса тогда зачем ? Да ещё и с камином (в дополнение к хозяйскому) ?! 4) Аналогично и сауна в гостевом доме (в дополнение к хозяйской) ? А смысл ? Нет, я понимаю, что в силу характеров все люди разные и имеют свои индивидуальные предпочтения, но, честно говоря, я слабо представляю, чтобы к примеру мои гости жарили без меня мясо на мангале, гуляли и пили на отдельной террасе или отдыхали в отдельной сауне на моем участке ..... 1 1 Посилання на коментар Поділитися на інших сайтах More sharing options...
SychiyKit Опубліковано: 14 серпня 2024 Автор Поділитись Опубліковано: 14 серпня 2024 12 часов назад, tayatlas сказал: Дом, состоящий из парадоксов. 1) Площадь "жилых" помещений - ок. 30 м2, площадь "вспомогательных" (включая террасу) 60 м2 - в 2 раза больше !!! Абсолютно нелогично как для гостевого дома 2) Гараж в гостевом доме (чаще это ночевка на 1-2 ночи) ? Авто на улице не постоит 1-2 дня ? Да еще по площади почти равной суммарно спальне и гостиной ? "Оправдание" как технического помещения как то слабовато. Ну можно техпомещение в доме 8-10-12 м2. Но почти 27 ??? 3) Терраса в гостевом доме ? Ну если учесть, что гости приехали к хозяевам, то и "тусоваться" они будут вместе с хозяевами.... И отдельная терраса тогда зачем ? Да ещё и с камином (в дополнение к хозяйскому) ?! 4) Аналогично и сауна в гостевом доме (в дополнение к хозяйской) ? А смысл ? Нет, я понимаю, что в силу характеров все люди разные и имеют свои индивидуальные предпочтения, но, честно говоря, я слабо представляю, чтобы к примеру мои гости жарили без меня мясо на мангале, гуляли и пили на отдельной террасе или отдыхали в отдельной сауне на моем участке ..... Проект по этому дому закрыт навсегда но скажу от себя: всегда необходимо думать наперед, данное строительство планировалось как временное (возможно и постоянное ввиду финансов) поэтому и было продумано с гаражом/террасою и т.д. Жить есть где, но к примеру если к тебе в гости приедут родственники, в однокомнатной квартире их не разместить и да они могут "тусоваться" и жарить шашлык сами 1 и 2 дня и даже месяц. И автомобиля может быть два, парковок в городе нет, что тогда? покупать еще гараж где-то на окраине, если один автомобиль используется не всегда? Посилання на коментар Поділитися на інших сайтах More sharing options...
DimaF Опубліковано: 14 серпня 2024 Поділитись Опубліковано: 14 серпня 2024 12 минут назад, SychiyKit сказал: И автомобиля может быть два Ну при строительстве чего то своего думать прежде всего за гараж глупо. Дом строится для себя, авто и на площадке постоит. Посилання на коментар Поділитися на інших сайтах More sharing options...
delic Опубліковано: 14 серпня 2024 Поділитись Опубліковано: 14 серпня 2024 15 хвилин тому, SychiyKit сказав: Жить есть где, но к примеру если к тебе в гости приедут родственники, Свого часу збирались до родичів в гості з'їздити. Але родичі наполягали, щоб ми в цей час проживали разом з ними. Але нам такий "комфорт" не дуже подобався. Планували проживати в готелі, чи зняти житло. В результати відмовились від поїздки. Я до того, що заради нерегулярних наїздів родичів будувати і утримувати будинок, обслуговувати ділянку, то мабуть занадто... Є й інші цілком цивільні варіанти... 1 Посилання на коментар Поділитися на інших сайтах More sharing options...
SychiyKit Опубліковано: 14 серпня 2024 Автор Поділитись Опубліковано: 14 серпня 2024 4 минуты назад, DimaF сказал: авто и на площадке постоит А если будет мото транспорт или детские машинки или детские коляски или все вместе еще + велосипеды. Куда ставить на площадке? Или новесы по всему периметру? 1 Посилання на коментар Поділитися на інших сайтах More sharing options...
SychiyKit Опубліковано: 14 серпня 2024 Автор Поділитись Опубліковано: 14 серпня 2024 7 минут назад, delic сказал: Свого часу збирались до родичів в гості з'їздити. Але родичі наполягали, щоб ми в цей час проживали разом з ними. Але нам такий "комфорт" не дуже подобався. Планували проживати в готелі, чи зняти житло. В результати відмовились від поїздки. Я до того, що заради нерегулярних наїздів родичів будувати і утримувати будинок, обслуговувати ділянку, то мабуть занадто... Є й інші цілком цивільні варіанти... Хіба будиночок будують для родичів? Можна використовувати як дачу, чому ні? ? Посилання на коментар Поділитися на інших сайтах More sharing options...
SychiyKit Опубліковано: 14 серпня 2024 Автор Поділитись Опубліковано: 14 серпня 2024 18 часов назад, anabioz сказал: Можу запитати, але не менше 200К$. З мемблями і технікою. Запитайте, якщо не важко, фундамент/коробка/дах. Дякую Посилання на коментар Поділитися на інших сайтах More sharing options...
delic Опубліковано: 14 серпня 2024 Поділитись Опубліковано: 14 серпня 2024 17 хвилин тому, SychiyKit сказав: Хіба будиночок будують для родичів? Можна використовувати як дачу, чому ні? ? Як дачу для себе, то інша справа. Але я так розумію що ваша ідея в тому, щоб і для родичів дачу пристосувати? Посилання на коментар Поділитися на інших сайтах More sharing options...
SychiyKit Опубліковано: 14 серпня 2024 Автор Поділитись Опубліковано: 14 серпня 2024 22 минуты назад, delic сказал: Як дачу для себе, то інша справа. Але я так розумію що ваша ідея в тому, щоб і для родичів дачу пристосувати? Все вірно. Але це вже забута тема. Посилання на коментар Поділитися на інших сайтах More sharing options...
Nikolay Cherednichenko Опубліковано: 14 серпня 2024 Поділитись Опубліковано: 14 серпня 2024 В 09.08.2024 в 22:20, anabioz сказал: 1. Не будував би гостьового будиночку б ніколи, марна трата часу і грошей. Хочеться шашлику? Скважина, туалет типу "сортір", термобудка на 6,5 метрів. 2. Ото шо Вам намалювали - коментувати не буду, вже написали. Лише запропоную варіант, який вже побудований (не мною) і який мені подобається своєю ергономічністю. Є декілька зауважень, але не суттєві, як на мене. Може щось для себе знайдете корисного. Розмах царський! Посилання на коментар Поділитися на інших сайтах More sharing options...
anabioz Опубліковано: 14 серпня 2024 Поділитись Опубліковано: 14 серпня 2024 (змінено) 6 годин тому, Nikolay Cherednichenko сказав: Розмах царський! А в чому "царкісьць"? 157м2, включаючи гараж та терасу. То Ви царських палаців на 1570м2 не бачили в Конча-Заспі. Змінено 14 серпня 2024 користувачем anabioz 1 Посилання на коментар Поділитися на інших сайтах More sharing options...
Рекомендовані повідомлення
Створіть акаунт або увійдіть у нього для коментування
Ви маєте бути користувачем, щоб залишити коментар
Створити акаунт
Зареєструйтеся для отримання акаунта. Це просто!
Зареєструвати акаунтУвійти
Вже зареєстровані? Увійдіть тут.
Увійти зараз