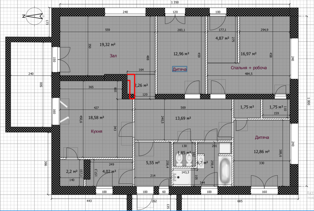
nameDark Опубліковано: 21 листопада 2024 Поділитись Опубліковано: 21 листопада 2024 Вітаю! Покритикуйте/порядьте по плануванню будинка. Зведена коробка з несучою стіною (зафарбована в чорне). На жаль будівельники запороли фундамент в кухні (виділено червоним як мало бути) Двері на терасу з кухні І чи можливо на кухні розмістити острівець? Такого типу: Дякую! Посилання на коментар Поділитися на інших сайтах More sharing options...
DimaF Опубліковано: 21 листопада 2024 Поділитись Опубліковано: 21 листопада 2024 (змінено) Зачем вам зал и кухня одинаковой площади и раздельные?? Зал будет всегда пустым, кроме праздников, а может и на праздники. Делайте одно пространство. Что за две будки по 1.75 справа возле детской? Если нет второго сортира на участке то я бы добавил еще один в дом, на 4-х одного мало. Змінено 21 листопада 2024 користувачем DimaF 1 Посилання на коментар Поділитися на інших сайтах More sharing options...
Simpapula Опубліковано: 21 листопада 2024 Поділитись Опубліковано: 21 листопада 2024 (змінено) Острів можна поставити. Впритул. Але все планування ще не ідеальне. Хол занадто великий, але в ньому навіть шафа не вміститься. А передпокій маленький, його би зробити більше. Ще дитяча поряд з ванною не гарно - підете опівночі митися, дитину розбудите. Змінено 21 листопада 2024 користувачем Simpapula 1 Посилання на коментар Поділитися на інших сайтах More sharing options...
BugS Опубліковано: 21 листопада 2024 Поділитись Опубліковано: 21 листопада 2024 3 години тому, nameDark сказав: На жаль будівельники запороли фундамент в кухні (виділено червоним як мало бути) На жаль, це сама маленька проблема даного планування. При площі приблизно 125 м кв, ви маєте маленькі дитячі, жодного повноцінного санвузла з ваною та унітазом. В одній дитячій довжина вікон 4 метри, в іншій 1.2 м. Транзитна зона 13,7 метри, що більше за дитячі. Про недоцільні комірки 1.75м в кімнатах вам вже сказали. Без плану розташування меблів дане планування не має сенсу. 2 1 Посилання на коментар Поділитися на інших сайтах More sharing options...
SAN67 Опубліковано: 22 листопада 2024 Поділитись Опубліковано: 22 листопада 2024 18 часов назад, nameDark сказал: Покритикуйте IMHO. Унитаз и биде внутри помещения, а душ и ванна у наружного ограждения - это неразумно. Советую изменить планировку санузла. 1 Посилання на коментар Поділитися на інших сайтах More sharing options...
nameDark Опубліковано: 22 листопада 2024 Автор Поділитись Опубліковано: 22 листопада 2024 20 часов назад, DimaF сказал: Зачем вам зал и кухня одинаковой площади и раздельные?? Зал будет всегда пустым, кроме праздников, а может и на праздники. Делайте одно пространство. Что за две будки по 1.75 справа возле детской? Если нет второго сортира на участке то я бы добавил еще один в дом, на 4-х одного мало. Окрема кухня це обов'язкова умова дружини. "Будки" це гардеробні Посилання на коментар Поділитися на інших сайтах More sharing options...
vadimv Опубліковано: 22 листопада 2024 Поділитись Опубліковано: 22 листопада 2024 (змінено) 21 годину тому, nameDark сказав: І чи можливо на кухні розмістити острівець? А навіщо вам острівець у окремій кухні? Зазвичай жеж його роблять в кухні-вітальні, щоб хазяйка мала можливість спілкуватися з родиною/гостями у вітальні (як на фото) і дивитися телевізор у тій же вітальні. Змінено 22 листопада 2024 користувачем vadimv 1 Посилання на коментар Поділитися на інших сайтах More sharing options...
anabioz Опубліковано: 22 листопада 2024 Поділитись Опубліковано: 22 листопада 2024 5 хвилин тому, nameDark сказав: Окрема кухня це обов'язкова умова дружини. "Будки" це гардеробні Кухня на фото з островом площею квадратів так 60-70. А в реаліях у Вас буде там дуже тісно на відстані 3,43 метра - метр для стільців, метр для столу, метр для дивану ... а острів в 1 метр впритул до робочої поверхні. Simpapula намалював/ала, але то не в пропорціях. Розтавляйте меблі, побачите реальні розміри приміщення. Три маленькі спальні і окремий зал - для кого? Для гостей? Окрема кухня - це звичка зі свого досвіду. Не більше, не менше ... 1 1 Посилання на коментар Поділитися на інших сайтах More sharing options...
anabioz Опубліковано: 22 листопада 2024 Поділитись Опубліковано: 22 листопада 2024 (змінено) Унітаз і біде не поміститься в кімнаті з шириною 1,3. Хоча, помістити можна, а як використовувати, коли ноги в стіни впираються? Хоча, можна якось і використати ... ))) Ви ж для цього хочете штук 100 ввалити? Змінено 22 листопада 2024 користувачем anabioz 1 1 Посилання на коментар Поділитися на інших сайтах More sharing options...
АлександрБ. Опубліковано: 22 листопада 2024 Поділитись Опубліковано: 22 листопада 2024 3 часа назад, SAN67 сказал: Унитаз и биде внутри помещения, а душ и ванна у наружного ограждения - это неразумно. Из каких соображений ? Это техническая целесообразность или просто так по дизайну душевнее ? Посилання на коментар Поділитися на інших сайтах More sharing options...
SAN67 Опубліковано: 22 листопада 2024 Поділитись Опубліковано: 22 листопада 2024 2 часа назад, nameDark сказал: "Будки" це гардеробні Вопрос возмещения теплопотерь в "будке" примыкающей к наружному ограждению проработали? Немного странно расположен умывальник, имхо. После туалета руки мыть где? 1 Посилання на коментар Поділитися на інших сайтах More sharing options...
denis-k Опубліковано: 22 листопада 2024 Поділитись Опубліковано: 22 листопада 2024 Зря такую тонкую стенку между взрослой и детской комнатой, ой пожалеете 😄 1 Посилання на коментар Поділитися на інших сайтах More sharing options...
Dendnepr Опубліковано: 22 листопада 2024 Поділитись Опубліковано: 22 листопада 2024 3 часа назад, nameDark сказал: Окрема кухня це обов'язкова умова дружини. Моя спочатку так теж казала, але потім я її вмовив, що, якщо не сподобається спільний простір - я закриє кухню перегородкою. І навіть двері поставлю. Але все подобається. Дуже зручно і головне просторо. Правда кухня не прям в залі, а трохи в закутку 1 Посилання на коментар Поділитися на інших сайтах More sharing options...
DimaF Опубліковано: 22 листопада 2024 Поділитись Опубліковано: 22 листопада 2024 1 час назад, Dendnepr сказал: Правда кухня не прям в залі, а трохи в закутку У мене схоже планування) Посилання на коментар Поділитися на інших сайтах More sharing options...
nameDark Опубліковано: 22 листопада 2024 Автор Поділитись Опубліковано: 22 листопада 2024 В 21.11.2024 в 16:57, BugS сказал: На жаль, це сама маленька проблема даного планування. При площі приблизно 125 м кв, ви маєте маленькі дитячі, жодного повноцінного санвузла з ваною та унітазом. В одній дитячій довжина вікон 4 метри, в іншій 1.2 м. Транзитна зона 13,7 метри, що більше за дитячі. Про недоцільні комірки 1.75м в кімнатах вам вже сказали. Без плану розташування меблів дане планування не має сенсу. Трохи накидав меблів Посилання на коментар Поділитися на інших сайтах More sharing options...
SAN67 Опубліковано: 22 листопада 2024 Поділитись Опубліковано: 22 листопада 2024 В 21.11.2024 в 13:09, nameDark сказал: Зведена коробка з несучою стіною Значит можно внести изменения? Если да 1 1 Посилання на коментар Поділитися на інших сайтах More sharing options...
nameDark Опубліковано: 22 листопада 2024 Автор Поділитись Опубліковано: 22 листопада 2024 49 минут назад, SAN67 сказал: Значит можно внести изменения? Если да Так, збудована лише коробка з несучою, заштриховано чорним. Інших перегородок немає. Посилання на коментар Поділитися на інших сайтах More sharing options...
shneider_vova Опубліковано: 22 листопада 2024 Поділитись Опубліковано: 22 листопада 2024 1 годину тому, SAN67 сказав: Значит можно внести изменения? Если да А звідки 3509 візьметься? Посилання на коментар Поділитися на інших сайтах More sharing options...
SAN67 Опубліковано: 23 листопада 2024 Поділитись Опубліковано: 23 листопада 2024 5 часов назад, shneider_vova сказал: А звідки 3509 візьметься? Всё показано. Транзитная зона + перепланировка гардеробных. Посилання на коментар Поділитися на інших сайтах More sharing options...
SAN67 Опубліковано: 23 листопада 2024 Поділитись Опубліковано: 23 листопада 2024 7 часов назад, nameDark сказал: Інших перегородок немає. Рассмотрите и такой вариант Посилання на коментар Поділитися на інших сайтах More sharing options...
nameDark Опубліковано: 28 листопада 2024 Автор Поділитись Опубліковано: 28 листопада 2024 На основі Ваших коментарів (дякую!) дещо переробив план Посилання на коментар Поділитися на інших сайтах More sharing options...
SAN67 Опубліковано: 29 листопада 2024 Поділитись Опубліковано: 29 листопада 2024 9 часов назад, nameDark сказал: переробив план Рассмотрите и такой вариант 1 Посилання на коментар Поділитися на інших сайтах More sharing options...
Savcha Опубліковано: 29 листопада 2024 Поділитись Опубліковано: 29 листопада 2024 Зупиніться з переробкою санвузлів - з кожною порадою та переробкою стає тільки гірше. %) Посилання на коментар Поділитися на інших сайтах More sharing options...
vadimv Опубліковано: 29 листопада 2024 Поділитись Опубліковано: 29 листопада 2024 (змінено) 58 хвилин тому, Savcha сказав: Зупиніться з переробкою санвузлів - з кожною порадою та переробкою стає тільки гірше. %) Нє, ну чо - остання виглядає краще - там є два унітази в різних приміщеннях. Що в будину з трьома спальнями мастхев. Хіба що умивальник під вікном виглядає сумнівно... Змінено 29 листопада 2024 користувачем vadimv Посилання на коментар Поділитися на інших сайтах More sharing options...
Maryan_bhfz Опубліковано: 29 листопада 2024 Поділитись Опубліковано: 29 листопада 2024 А якщо біде замінити гігієнічним душем, то і умивальник під вікно не треба буде ставити 3 Посилання на коментар Поділитися на інших сайтах More sharing options...
Рекомендовані повідомлення
Створіть акаунт або увійдіть у нього для коментування
Ви маєте бути користувачем, щоб залишити коментар
Створити акаунт
Зареєструйтеся для отримання акаунта. Це просто!
Зареєструвати акаунтУвійти
Вже зареєстровані? Увійдіть тут.
Увійти зараз