Музей Опубліковано: 28 березня 2023 Поділитись Опубліковано: 28 березня 2023 (змінено) 27.03.2023 в 18:28, Дмитрий Ф сказав: Можете спокойно подвергать критике эту идею - я буду только рад, потому как хоть так можно обкатать идею, которая потом может помочь многим Задружіться з сусідами, що вже мають будинок з підвалом. Будете разом пити грог в їхньому підвалі, раптом що. Наівно думати, що підвал вбереже від серйозного прямого влучання, але якщо боїтеся, то краще ховатися. В мене сособисто висновки після року війни - раптом що відповзати трохи далі. 20 к, що Ви не вкладете в підвал, дозволять Вам влаштувати дітей в безпечному місці і протриматися хоч з пів року. Змінено 28 березня 2023 користувачем Музей 2 Посилання на коментар Поділитися на інших сайтах More sharing options...
Музей Опубліковано: 28 березня 2023 Поділитись Опубліковано: 28 березня 2023 2 години тому, Дмитрий Ф сказав: У меня такое впечатление что большая часть комментаторов не читает, что я пишу ))) Или я пишу как-то не так ))) Останнім часом нових будівництв на форумі майже немає. І ми всі зраділи, що є де побазікати на улюблену тему - план будівництва. Так, ніби повернутися в щасливі часи до війни... Посилання на коментар Поділитися на інших сайтах More sharing options...
Музей Опубліковано: 28 березня 2023 Поділитись Опубліковано: 28 березня 2023 (змінено) 21.03.2023 в 12:43, Дмитрий Ф сказав: как уменьшить пятно застройки? У меня кроме как спустить еще одну спальню в подвал нет никаких идей. Я теж маю ділянку з фасадом 20м (по факту 19). Довжина 50м. Будинок одноповерховий 160м2 (3 спальни) + тераси (забудова 240м2) без цоколів та підвалів, ще маю господарчу споруду метрів 40, навіс для авто 14х8м. Якби мій садок був вполовину менший, я б не плакала. Місця цілком достатньо, щоб вмістити все, що необхідно. Візьміть за основу готовий проект на Зе500 або інших, зверніться до архітектора з форуму (мені допомагав Дроссельбир) і трохи пдкорегуйте під власні бажання. Архітектор допоможе Вам не напроектувати на невиправдано дорогі технічні рішення, вписавшись в стандартні розміри по перекриттях даху і зодягне будинок в фасади на Ваш смак і бюджет. Вийде значно краще, ніж те що Ви напроектували. Змінено 28 березня 2023 користувачем Музей 2 Посилання на коментар Поділитися на інших сайтах More sharing options...
BugS Опубліковано: 28 березня 2023 Поділитись Опубліковано: 28 березня 2023 4 хвилини тому, Музей сказав: Я теж маю ділянку з фасадом 20м (по факту 19). Довжина 50м. Будинок одноповерховий 160м2 (3 спальни) + тераси (забудова 240м2) без цоколів та підвалів, ще маю господарчу споруду метрів 40, навіс для авто 14х8м. Якби мій садок був вполовину менший, я б не плакала. Місця цілком достатньо, щоб вмістити все, що необхідно. Візьміть за основу готовий проект на Зе500 або інших, зверніться до архітектора з форуму (мені допомагав Дроссельбир) і трохи пдкорегуйте під власні бажання. Архітектор допоможе Вам не напроектувати на невиправдано дорогі технічні рішення, вписавшись в стандартні розміри по перекриттях даху і зодягне будинок в фасади на Ваш смак і бюджет. Вийде значно краще, ніж те що Ви напроектували. Коли сюди викладають проект, то, як правило, не з метою врахувати зауваження форума, а з метою ще більше переконатися у власній думці щодо обраного проекту. Впевнений, що автор теми нічого не змінить. До речі, я свого часу зробив так само). 1 1 Посилання на коментар Поділитися на інших сайтах More sharing options...
Музей Опубліковано: 28 березня 2023 Поділитись Опубліковано: 28 березня 2023 1 хвилину тому, BugS сказав: Коли сюди викладають проект, то, як правило, не з метою врахувати зауваження форума, а з метою ще більше переконатися у власній думці щодо обраного проекту. Впевнений, що автор теми нічого не змінить. До речі, я свого часу зробив так само). Автору видніше. У всякому разі, на критику ідеї підвала автор вже зважив. 1 Посилання на коментар Поділитися на інших сайтах More sharing options...
US7IGN Опубліковано: 28 березня 2023 Поділитись Опубліковано: 28 березня 2023 Ніколи не зважав на критику. Як хтось інший може краще за мене знати що я хочу? 1 1 Посилання на коментар Поділитися на інших сайтах More sharing options...
normal Опубліковано: 28 березня 2023 Поділитись Опубліковано: 28 березня 2023 2 години тому, Дмитрий Ф сказав: Подвал я рассматривал из ДВУХ причин. Не занимать место на участке А куди подіти 11*11*3*1.25=450м3 викопаної землі? Це біля 70 камазів? А скільки вартість екскаватора? А відремонтувати після них дорогу "в устоявшейся застройке"? У мене сусідка як тільки побаче до мене машину з піском одразу десь звонить і прилітає "коміссія в галстуках" чи я нічого не порушив, а побачили б такий котлован, то точно пришили незаконний кар'єр по видобутку глини Просто не поспішайте, почитайте форум ще пів року, а тим паче незрозуміло, що там скоро буде біля Запоріжжя, чи то наступ, чи то котрнаступ 1 1 Посилання на коментар Поділитися на інших сайтах More sharing options...
Фрай Опубліковано: 28 березня 2023 Поділитись Опубліковано: 28 березня 2023 (змінено) 35 минут назад, normal сказал: Просто не поспішайте, почитайте форум ще пів року, а тим паче незрозуміло, що там скоро буде біля Запоріжжя Ох, матка боска! Та про яке будівництво там і зараз може бути мова? Змінено 28 березня 2023 користувачем Фрай 1 1 Посилання на коментар Поділитися на інших сайтах More sharing options...
Музей Опубліковано: 28 березня 2023 Поділитись Опубліковано: 28 березня 2023 20 хвилин тому, Фрай сказав: Ох, матка боска! Та про яке будівництво там і зараз може бути мова? Це лише точка зору. До вересня місяця, я вважала, що за Бескидами життя немає і бути не може. 1 Посилання на коментар Поділитися на інших сайтах More sharing options...
Музей Опубліковано: 28 березня 2023 Поділитись Опубліковано: 28 березня 2023 1 Посилання на коментар Поділитися на інших сайтах More sharing options...
Музей Опубліковано: 28 березня 2023 Поділитись Опубліковано: 28 березня 2023 1 Посилання на коментар Поділитися на інших сайтах More sharing options...
Дмитрий Ф Опубліковано: 28 березня 2023 Автор Поділитись Опубліковано: 28 березня 2023 Пока проект, пока туда сюда. Вот уже и сентябрь. Время то быстро летит. Посилання на коментар Поділитися на інших сайтах More sharing options...
Дмитрий Ф Опубліковано: 31 березня 2023 Автор Поділитись Опубліковано: 31 березня 2023 tsn.ua/exclusive/na-prikarpatti-obladnali-shkoli-zahisnim-ustatkuvannyam-za-izrayilskimi-prikladom-i-dozvolili-oflayn-navchannya-2259763.html Посилання на коментар Поділитися на інших сайтах More sharing options...
DimaF Опубліковано: 31 березня 2023 Поділитись Опубліковано: 31 березня 2023 В 28.03.2023 в 18:27, Фрай сказал: к тому же подвал можно закончить и позже, уже живя в доме Редко кому удается)) Посилання на коментар Поділитися на інших сайтах More sharing options...
Фрай Опубліковано: 31 березня 2023 Поділитись Опубліковано: 31 березня 2023 Если самому то да, если нанимать то в чем проблема? Посилання на коментар Поділитися на інших сайтах More sharing options...
DimaF Опубліковано: 1 квітня 2023 Поділитись Опубліковано: 1 квітня 2023 14 часов назад, Фрай сказал: Если самому то да, если нанимать то в чем проблема? Проблема одна - подвал быстро забивается хламом, и чтобы продолжить ремонт нужно его освободить)) А это порой уже нереально))🎃 Посилання на коментар Поділитися на інших сайтах More sharing options...
US7IGN Опубліковано: 1 квітня 2023 Поділитись Опубліковано: 1 квітня 2023 Спочатку взагалі потрібно будувати сарай, а потім вже все інше ) Посилання на коментар Поділитися на інших сайтах More sharing options...
normal Опубліковано: 1 квітня 2023 Поділитись Опубліковано: 1 квітня 2023 Це точно, ось-ось дороблю підвал, сарай, баню, бесідку, дренаж, полив і тоді вже буде кругом порядок, і так вже скоро 10 років То не чіпай, бо спочатку треба зробити то, а то не викидай бо колись знадобиться для опалубки... 2 Посилання на коментар Поділитися на інших сайтах More sharing options...
Фрай Опубліковано: 1 квітня 2023 Поділитись Опубліковано: 1 квітня 2023 А ви робіть як Астролог, тільки заплановане, не відволікаючись на інше. і вже писав, якщо робиш все сам то це дуже виходить важко. )) Посилання на коментар Поділитися на інших сайтах More sharing options...
vbb Опубліковано: 1 квітня 2023 Поділитись Опубліковано: 1 квітня 2023 (змінено) Ось це на 2013 рік стало в 30к дол +- Одна з кімнат використовується ось так: Прихований текст Змінено 1 квітня 2023 користувачем vbb додав 1 Посилання на коментар Поділитися на інших сайтах More sharing options...
normal Опубліковано: 1 квітня 2023 Поділитись Опубліковано: 1 квітня 2023 (змінено) Мені подобається фундаментальність та якість виконання, бо з будинком в нагрузку отримав окрему "дешеву" конструкцію з часів СРСР: там всередені треба голову пригинати, бо в одній кімнаті можна нею зачепити 36-й двутавр, а в іншій по лобі отримати 24-м, так само і ззовні: якщо пузом не врізався у стирчащу ПК-20, то далі скальп зніме плита ПД-10 Як то все обрізати та утеплити ще той квест... Змінено 1 квітня 2023 користувачем normal Посилання на коментар Поділитися на інших сайтах More sharing options...
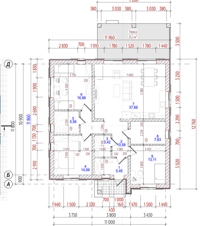
Дмитрий Ф Опубліковано: 28 квітня 2023 Автор Поділитись Опубліковано: 28 квітня 2023 В продолжении темы, чтоб следующие читающие не посчитали, что тема умерла и ответов так и не получено. Как я уже писал выше (думаю что писал) от идеи подвала отошли, по причине того что стоимость подвала не пропорциональна его функционалу. Т.е. в мирное время подвальный этаж в нашем случае скорее всего будет простаивать. Проведя "исследовательскую" работу по характерам повреждения домов от падающих ракет пришел к выводу, что кирпичной кладки в 1,5 кирпича должно хватить + ставни толщиной в 10мм + добавили несущих стен для большей жесткости. Саму планировку чуть раздули до 12 метров получилось вот так. 1 Посилання на коментар Поділитися на інших сайтах More sharing options...
DimaF Опубліковано: 28 квітня 2023 Поділитись Опубліковано: 28 квітня 2023 1 час назад, Дмитрий Ф сказал: получилось вот так. Как по мне, вполне толково. 1 Посилання на коментар Поділитися на інших сайтах More sharing options...
Savcha Опубліковано: 28 квітня 2023 Поділитись Опубліковано: 28 квітня 2023 4 години тому, Дмитрий Ф сказав: ... получилось вот так. 3 години тому, DimaF сказав: Как по мне, вполне толково. Погоджуся. Тільки, здається в каміна дивне розташування. Тут або його зсунути в протилежний кут (якщо каміно-фен - то повітропроводи до кімнат коротші будуть і не буде опалювати вулицю), або в геометричний центр стіни (і на гіпсокартонний короб який його буде зашивати повісити телевізор, а по боках відкриті полички будуть) або залишити там де є, але додати на терасі ззовні притуливши до стіни BBQ (і об'єднати димарі в блок). Та дивні розміри по фасаду ззовні з урахуванням чверті вікон з утеплювача %) Таке ні будівельникам, ні віконщикам давати не можна - обов'язково наплутають. Посилання на коментар Поділитися на інших сайтах More sharing options...
Skazka Опубліковано: 28 квітня 2023 Поділитись Опубліковано: 28 квітня 2023 (змінено) 13 часов назад, Дмитрий Ф сказал: Саму планировку чуть раздули до 12 метров получилось вот так. А где будет жить четвертый ребенок? Еще если кто-то пойдет принять ванну, все остальные останутся грязными. А по утрам в санузлы будут очереди. Еще зачем вам гостиная размером в однокомнатную квартиру, если у всех есть свои комнаты, и терраса, и двор? Вы часто всей семьей смотрите по телевизору что-то одно, при этом каждый занимает несколько квадратных метров? Еще коридоры можно подсократить и входить в детские сразу из гостиной. Это родители могут издавать "тайные звуки", поэтому им надо больше дверей между спальней и публичным местом. Еще нет гардеробной (у шестерых проживающих должно быть огромное количество шмоток) и кладовки (опять-таки, одни запасы порошка и туалетной бумаги должны быть объемные, а еще еда). Змінено 28 квітня 2023 користувачем Skazka Посилання на коментар Поділитися на інших сайтах More sharing options...
Рекомендовані повідомлення
Створіть акаунт або увійдіть у нього для коментування
Ви маєте бути користувачем, щоб залишити коментар
Створити акаунт
Зареєструйтеся для отримання акаунта. Це просто!
Зареєструвати акаунтУвійти
Вже зареєстровані? Увійдіть тут.
Увійти зараз