semengv Опубліковано: 17 березня 2016 Поділитись Опубліковано: 17 березня 2016 я жалею что не сделал стены и перекрытие изначально более теплыми, это было на тот момент так просто... А на сегодняшний день какой бы Вы сделали стену? Если есть условие - однослойная и бюджет не резиновый. Предполагала 500мм Д400 Юдк, но при ближайшем рассмотрении - дороже аэрока 400 мм Д300. При общении с заводом - была рекомендация Аэрок Екотерм Суперплюс Д300 от 375 мм без утепления. Ваши рекомендации насчет комбинирования просчитывала - дорого и многослойная сложнее в исполнении. Посилання на коментар Поділитися на інших сайтах More sharing options...
Dmode Опубліковано: 17 березня 2016 Автор Поділитись Опубліковано: 17 березня 2016 (змінено) Ваши рекомендации насчет комбинирования просчитывала - дорого и многослойная сложнее в исполнении. А на сегодняшний день какой бы Вы сделали стену? Если есть условие - однослойная и бюджет не резиновый. Предполагала 500мм Д400 Юдк, но при ближайшем рассмотрении - дороже аэрока 400 мм Д300. И все таки я за 400мм D300 + 200mm Energy. ИМХО это и не обычная многослойная конструкция, поскольку материал сразу берете от одного поставщика, и сразу стену возводите в окончательном виде (при условии общего фундамента), отсутствуют разбития на этапы в понимании утепления например ватой. Поэтому работа не должна быть дороже чем кладка однослойной стены. Разница будет в наличии закладных деталей и в разнице стоимости самого Energy. Но если Energy слишком дорогой материал, то рассмотрите такой вариант кладки из 400мм блока D300, стена выйдет 600мм. U® у нее будет 0.146(6.8), против 0.116(8.6) с вышеописанным вариантом Energy, то есть на 20% ниже, но все равно достаточно не плохо. При общении с заводом - была рекомендация Аэрок Екотерм Суперплюс Д300 от 375 мм без утепления. Не удивительно. У них цель максимальные продажи, для этого клиента вполне обоснованно убеждают, что данный вариант вполне приемлем, и как бы выигрывают на общем фоне. Но все это потому, что у нас нормы не соответствуют современным тенденциям роста цен на энергоносители. И потом получается наивный вопрос застройщика: почему так дорого обходится отопление, я ж ведь делал все по нормам...? Чтобы так не разочаровываться можно обратить внимания на нормы в других развитых странах, а еще лучше просчитать самому сколько Вы будете платить за отопление при том или ином пироге стены, тогда гарантируется максимальное просветление . Змінено 17 березня 2016 користувачем Dmode 11 Посилання на коментар Поділитися на інших сайтах More sharing options...
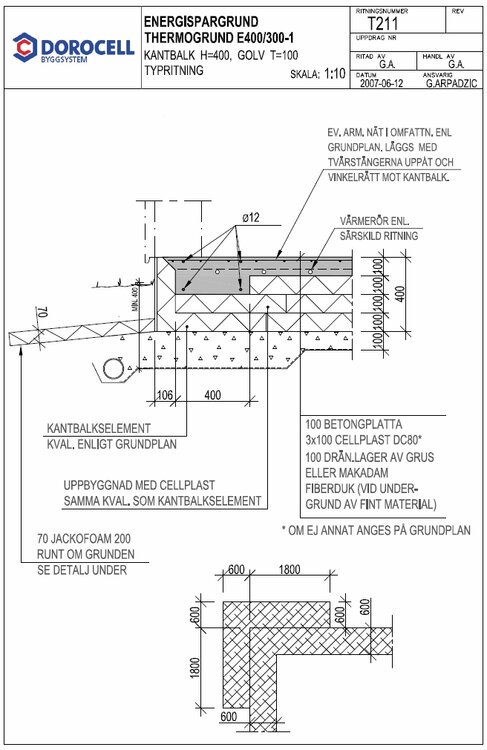
Михаил Викторович Опубліковано: 18 березня 2016 Поділитись Опубліковано: 18 березня 2016 Dmode Подскажите, на каком расстоянии заложены у вас дренажные каналы по периметру дома, от края подушки? Посилання на коментар Поділитися на інших сайтах More sharing options...
Dmode Опубліковано: 18 березня 2016 Автор Поділитись Опубліковано: 18 березня 2016 (змінено) Dmode Подскажите, на каком расстоянии заложены у вас дренажные каналы по периметру дома, от края подушки?По краю теплой отмостки. У Доросел они идут под отмосткой то есть центр дренажной трубы на расстоянии где-то 20-30см от края фундамента, мой вариант по расстоянию дренажа от плиты, ближе к последнему примеру от Вебер, то есть где-то 0.6-0.7м. Так мне казалось более эффективно. Змінено 18 березня 2016 користувачем Dmode 3 Посилання на коментар Поділитися на інших сайтах More sharing options...
Sumchanka Опубліковано: 19 березня 2016 Поділитись Опубліковано: 19 березня 2016 Доброго времени суток! Нужна подсказка -консультация. Мы под ванной на каркасе сделали похоже как у Вас типа лючки на магнитах. Их размер 300*300 мм. Основа ГК влагостойкий, а сверху мозаика (как и основной наклон), поставили магниты, но вот они вызывают большие сомнения -сегодня пробовала открывать /закрывать -и что-то какие они слабенькие. Поймала на мысли, что лючки могут упасть... Подскажите, как у Вас, какие магниты использовали, пирог лючка. Посилання на коментар Поділитися на інших сайтах More sharing options...
Dmode Опубліковано: 20 березня 2016 Автор Поділитись Опубліковано: 20 березня 2016 (змінено) Доброго времени суток! Нужна подсказка -консультация. Мы под ванной на каркасе сделали похоже как у Вас типа лючки на магнитах. Их размер 300*300 мм. Основа ГК влагостойкий, а сверху мозаика (как и основной наклон), поставили магниты, но вот они вызывают большие сомнения -сегодня пробовала открывать /закрывать -и что-то какие они слабенькие. Поймала на мысли, что лючки могут упасть... Подскажите, как у Вас, какие магниты использовали, пирог лючка. Швы засиликонили? (засиликонить+разрезать) У меня даже если магниты не словили контакт сзади, лючок держится только за счет распора силикона в швах, и вынуть его не так-то просто, так что шансов выпасть у него точно нет. Ручек я пока не сделал, да и наверное не буду делать. Магниты покупал в Эпицентре. Выглядит это так сейчас. Что не нравиться: Поскольку у магнитов есть минимальный люфт, плюс сами крепления их не такие уж и жесткие, при вставке лючка обратно, можно где-то пережать какой то угол, в результате люк как бы утапливается частью на какой-то миллиметр. Приходится давить на противоположный угол чтобы подровнять. Вывод - у такого лючка должен быть организован жесткий упор, дальше которого его вставить не возможно. Как бы делал сейчас: укладывается мозаика вокруг люка. В результате понятны четкие границы места где нужно вырезать гипсокартон. Вырезаем гипсокартон. Заклеил бы торцы разрезанного гипсокартона бумагой для швов, или чем-то подобным. Как сам люк так и контур, в который он будет вставляться. С обратной стороны гипсокартона в месте куда будет вставляться люк, приклеиваем полоски OSB, нижняя формирует упоры выступающими частями по бокам, верхняя полоска формирует упор сверху смещением миллиметров в 5-10. На верхнюю полоску прикручиваем/приклеиваем магниты. Далее на саму поверхность лючка наклеиваем две полоски OSB поменьше: на нижнюю прикручиваем две пластины из кровельной жести например, которые будут фиксировать люк снизу, заходя за ответную нижнюю полоску OSB. На верхнюю приклеиваем/прикручиваем ответные пластины магнитов. Вставляем проверяем, при необходимости регулируем магниты. Укладываем мозаику на люк. В результате осб не будет давать возможности ошибиться с положением вставки люка, ни в лево ни в право ни вниз (нижняя полоса за счет своей формы), ни по глубине (упор в верхнюю и нижнюю полоски). Магнитов меньше, низ зафиксирован жестче чем у меня сейчас. Змінено 20 березня 2016 користувачем Dmode 15 Посилання на коментар Поділитися на інших сайтах More sharing options...
Dmode Опубліковано: 20 березня 2016 Автор Поділитись Опубліковано: 20 березня 2016 Интересная статистика по нормам. Эволюция финских норм начиная с 1976 до 2012 года. Если сравнивнить с нашими сегодняшними нормами, то мы пока на уровне их 1978(!!!) года по стенам, по перекрытию/крыше на уровне их 90-х годов. 12 Посилання на коментар Поділитися на інших сайтах More sharing options...
jenkins Опубліковано: 20 березня 2016 Поділитись Опубліковано: 20 березня 2016 Если сравнивнить с нашими сегодняшними нормами, то мы пока на уровне их 1978(!!!) года по стенам, по перекрытию/крыше на уровне их 90-х годов. Когда лет 5 назад был газ по 50 коп кого волновали какие то нормы? Панельные дома- стены - 20см бетона... 1 Посилання на коментар Поділитися на інших сайтах More sharing options...
birel Опубліковано: 21 березня 2016 Поділитись Опубліковано: 21 березня 2016 Интересная табличка, спасибо На самом деле наши нормы и нормы Финляндии +- одинаковы по теплопотерям за отопительный период Для примера я взял города Днепропетровск и Каяани так как они оба расположены в центре. Для Днепропетровска средняя температура за отопительный период 180 дней +0,5 градуса. Для Каяани средняя температура за отопительный период 270 дней -2,0 градуса. Температуру грунта под полом принял за среднегодовую +9,0 и +3,0 и температуру в помещении +20,0 градусов. Вот какие потери за отопительный период у меня получились на м2 ограждающих конструкций Посилання на коментар Поділитися на інших сайтах More sharing options...
Dmode Опубліковано: 21 березня 2016 Автор Поділитись Опубліковано: 21 березня 2016 Интересная табличка, спасибо На самом деле наши нормы и нормы Финляндии +- одинаковы по теплопотерям за отопительный период Это должно как-то оправдать наших нормотворцев? Для меня более наглядным примером разницы в нормативах является следующий расчет (без учета вентиляции), климат Киева: если бы я построился по сегодняшним локальным нормам, то получил бы: -8.2кВт теплопотери при -25 , -19300кВт*ч в год на отопление (без учета теплопоступлений от солнца), -10800кВт*ч в год с учетом солнца (без учета затеняющих факторов). я построился с несколько лучшими характеристиками чем существующие на сегодня локальные нормы (хотя далеко от западных норм): -5.6кВт теплопотери при -25, -12400кВт*ч в год на отопление (без учета теплопоступлений от солнца), -5400кВт*ч в год с учетом солнца (без учета затеняющих факторов) если бы построился с учетом современных западных (пассивных) норм: -2.6кВт теплопотери при -25, -6000кВт*ч в год затраты на отопление (без учета теплопоступлений от солнца), -1000кВт*ч в год с учетом солнца (без учета затеняющих факторов). 13 Посилання на коментар Поділитися на інших сайтах More sharing options...
birel Опубліковано: 22 березня 2016 Поділитись Опубліковано: 22 березня 2016 Я и не пытаюсь оправдать наши нормы так как они значительно проигрывают нормам действующим в Германии с климатом теплее нашего на 3 градуса. Я хотел показать что довольно таки внушительные нормы по нашим меркам с учетом климата Финляндии уже не кажутся такими внушительными. 2 Посилання на коментар Поділитися на інших сайтах More sharing options...
fim Опубліковано: 22 березня 2016 Поділитись Опубліковано: 22 березня 2016 наши нормы... значительно проигрывают нормам действующим в Германии "жители развитых стран понимают, что вместо них никто не будет заботиться об экологии и разумно тратить ограниченные запасы топлива."(с) Посилання на коментар Поділитися на інших сайтах More sharing options...
-electron- Опубліковано: 24 березня 2016 Поділитись Опубліковано: 24 березня 2016 ТС. Я раніше в темі бачив посилання на сайт в якому ви рахували опір тепловтрат вікон. Наскільки пам'ятаю німецький. Щось не можу знайти зараз. Можете продублювати? Чи я скільки тем перечитав, що вже все перемішалось і я не там шукаю? Якщо таки помилився, то прошу пардону. Посилання на коментар Поділитися на інших сайтах More sharing options...
Dmode Опубліковано: 24 березня 2016 Автор Поділитись Опубліковано: 24 березня 2016 Сегодня общался с немцем на выставке, который c его слов является инженером сертифицированным пассивным институтом. Работает над одним пассивным проектом в Киеве, и одним в Одессе. Говорит что согласно его расчетов, для того чтобы добиться "пассивности" в условиях украинского климата, среди прочих пассивных требований, для Киева использует U стен 0.12, для Одессы U=0.15. Интересно. Я ожидал более строгие значения U. ТС. Я раніше в темі бачив посилання на сайт в якому ви рахували опір тепловтрат вікон. Наскільки пам'ятаю німецький. Щось не можу знайти зараз. Можете продублювати? Чи я скільки тем перечитав, що вже все перемішалось і я не там шукаю? Якщо таки помилився, то прошу пардону. www.euroglas.com/en/service/calculations.html 2 Посилання на коментар Поділитися на інших сайтах More sharing options...
-electron- Опубліковано: 25 березня 2016 Поділитись Опубліковано: 25 березня 2016 Там рахує тільки склопакети? Без профільної системи? Посилання на коментар Поділитися на інших сайтах More sharing options...
Dmode Опубліковано: 25 березня 2016 Автор Поділитись Опубліковано: 25 березня 2016 Там рахує тільки склопакети? Без профільної системи? А Ви який розрахунок мали на увазі: міцності/вітровий чи теплотехнічний? Посилання на коментар Поділитися на інших сайтах More sharing options...
Dmode Опубліковано: 25 березня 2016 Автор Поділитись Опубліковано: 25 березня 2016 Как у вас организовано гвс? электрокотел + косвенник ил электробойлер? Электрокотел+косвенник он же электробойлер, потому что в нем есть свой тэн (Drazice ОКСE 300 NTRR/3-6 kW). Пользуюсь пока только встроенным тэном в ночном тарифе, возможность пользоваться котлом в резерве. Посилання на коментар Поділитися на інших сайтах More sharing options...
JohnnyD Опубліковано: 25 березня 2016 Поділитись Опубліковано: 25 березня 2016 Как вы считаете, есть ли смысл использовать грунтовый теплообменник для вентиляции, используя приточную систему и естественную вытяжку с разводкой по дому? Т.е. вариант использования рекуператора существует, но его вероятность на текущий момент мала. Посилання на коментар Поділитися на інших сайтах More sharing options...
Dmode Опубліковано: 25 березня 2016 Автор Поділитись Опубліковано: 25 березня 2016 (змінено) Как вы считаете, есть ли смысл использовать грунтовый теплообменник для вентиляции, используя приточную систему и естественную вытяжку с разводкой по дому? Т.е. вариант использования рекуператора существует, но его вероятность на текущий момент мала. Смысл есть. Но есть нюансы. Если брать отопительный сезон: В случае когда ГТ (грунтовый теплообменник) будет использоваться без связки с рекуператором, он будет экономить средства на подогрев воздуха в морозы, и его надо проектировать исходя из того, какую максимальную дельту Вы сможете выжать из него, соотвественно труба будет подлинней и поглубже. Сопротивление такого ГТ будет больше, но на выходе можно будет получить плюсовую температуру до скажем +4С. Для примера: подогрев потока 300м3/ч с -16С до +4С сэкономит Вам 2кВт в час, или 48кВт*ч в сутки. Но чтобы далее догреть воздух от +4С до температуры +22С придется потратить еще 1.4кВт в час или 38кВ*ч в сутки. Если же ГТ планируется в связке с рекуператором, то его основная функция смещается в недопущение обмерзания темплообменника рекуператора, при этом он может обеспечивать намного меньшую дельту чем в вышеописанном варианте, главное чтобы на выходе ГТ была температура не ниже температуры обмерзания теплообменника. Для разных теплообменников это может быть разная температура, например -5С -8С. Соответственно и длина такого ГТ может быть короче, заложение не такое глубокое, сопротивление будет ниже. В связке с рекуператором ГТ теряет ф-цию экономии, поскольку ее перехватывает рекуператор. А у него тем больше теплообмен чем выше дельта, но задирая дельту можно обморозить теплообменник, вот тогда ГТ понижает эту дельту до уровня необмерзания. Для примера: для потока в 300м3/ч при уличной температуре -16С, внутренней +22С, при хорошем рекуператоре на выходе получите +21. Но в таком режиме он быстро обмерзнет, поскольку его т-ра обмерзания будет скажем -7С. Подняв с помощью ГТ подачу в рекуператор до -5С Вы получите те же +21С на выходе рекуператора, но уже без необходимости останавливать рекуператор на разморозку, или включать для этого рециркуляцию. Остается разница в 1С. Чтобы подогреть такой обьем на 1С потребуется 100Вт в час, или 2.4кВт*ч в сутки. Обычная приточно-вытяжная вентиляция без ГТ и рекуператора при 300м3/ч потребует на подогрев 3.8кВт в час, или 91кВт*ч в сутки. Разница приведенных примеров: рекуператор+ГТ и обычная вентиляция 38 раз. рекуператор+ГТ и просто ГТ в 16 раз. ГТ и обычная вентиляция 2,4 раза. Если же брать летний сезон: то ГТ может служить дополнительным источником охлаждения, и если нужна эта характеристика, то первый вариант с более длинной и глубокой трубой покажет лучший результат. Вывод следующий: для подогрева в морозы без рекуператора, а также летом для охлаждения нужен максимально эффективный ГТ (относительно длиный и глубокий, следовательно бОльшее сопротивление) для использования зимой в связке с рекуператором как noFrost мероприятие, нужен ГТ рассчитанный на выдачу температуры несколько выше чем температура обмерзания конкретного теплообменника (относительно короткий и менее глубокий, с меньшим сопротивлением) Если есть перспектива использовать ГТ в связке с рекуператором в будущем, но пока использовать его без рекуператора, то желательно строить более длинный и глубокий ГТ, но при этом можно предусмотреть один промежуточный вход, где-то на половине трассы ГТ (определить расчетом). И после того, как появится рекуператор, открывать на зиму этот вход, тем самым задействуя только необходимую для не обмерзания рекуператора часть ГТ, и тем самым понижая сопротивление в ГТ, облегчая работу вентиляторам рекуператора. Для примера: 300м3/ч в трубе ф200мм 70м длиной, в глинистых грунтах на глубине 2м, при входе -16С на выходе выдаст +2С при потерях давления в 63Па. Та же труба только 25м даст на выходе -4С при потерях давления в 29Па, что достаточно чтобы теплообменник не обмерзал. Остальные 45м трубы в случае использования рекуператора в отопительный период задействовать нет необходимости, поскольку повышение температуры на выходе ГТ не приведет к повышению температуры на выходе рекуператора, и даже напротив, в связи с повышенным сопротивлением приведет к повышенному потреблению двигателей вентиляторов, в случае EC двигателей, или к понижению воздухообмена при нерегулируемых АС двигателях. Змінено 25 березня 2016 користувачем Dmode 12 Посилання на коментар Поділитися на інших сайтах More sharing options...
jenkins Опубліковано: 25 березня 2016 Поділитись Опубліковано: 25 березня 2016 У грунтовых воздушных теплообменников есть один главный недостаток - загрязнения. Почистить его мероприятие не самое простое и врядле эффективное. Мне вот интерессно, если вместо воздуха в систему запустить некую незамерзайку, а теплообмен устроить перед тем самым рекуператором. Тоесть грунт по прежнему будет давать холод или тепло для воздуха, но приточный воздух будет иметь гораздо меньший путь наружу. Посилання на коментар Поділитися на інших сайтах More sharing options...
Dmode Опубліковано: 25 березня 2016 Автор Поділитись Опубліковано: 25 березня 2016 (змінено) У грунтовых воздушных теплообменников есть один главный недостаток - загрязнения. Почистить его мероприятие не самое простое и врядле эффективное. Мне вот интерессно, если вместо воздуха в систему запустить некую незамерзайку, а теплообмен устроить перед тем самым рекуператором. Тоесть грунт по прежнему будет давать холод или тепло для воздуха, но приточный воздух будет иметь гораздо меньший путь наружу.Приводил пример выдержек из исследований www.stroimdom.com.ua/forum/showpost.php?p=3817610&postcount=973, ничего страшного с воздушным ГТ не случается. Главное фильтр поставить на входе. Да и почистить при параное желании можно без проблем. Заказываешь машину, которая опускает в трубу шланг с форсункой, которая вращаясь смывает под давлением все что попадается на пути, как чистят канализационные трубы. Мне вот интерессно, если вместо воздуха в систему запустить некую незамерзайку, а теплообмен устроить перед тем самым рекуператором. Тоесть грунт по прежнему будет давать холод или тепло для воздуха, но приточный воздух будет иметь гораздо меньший путь наружу. Применяются такое решение, но требует расчета чтобы эффективность была приемлемой, и потребляет это дело электроэнергию (циркуляционный насос). Змінено 25 березня 2016 користувачем Dmode 3 Посилання на коментар Поділитися на інших сайтах More sharing options...
jenkins Опубліковано: 25 березня 2016 Поділитись Опубліковано: 25 березня 2016 За счет чего уменьшается количество бактерий итд? Чисто по ощущениям, исследования эти чисто маркетинговые... Был период в прошлом веке когда радиоактивные элементы добавляли даже в детское молоко, официально считая сие полезным. Радиоактивные помады тоже были, лекарства... Про циркуляционный насос - тоже думал о этом. Мне кажется тут прекрасное решение - солнечные панели с минимальным аккумулятором. Посилання на коментар Поділитися на інших сайтах More sharing options...
Dmode Опубліковано: 25 березня 2016 Автор Поділитись Опубліковано: 25 березня 2016 не зондировали какой взять трехходовой для подключения? пока что смотрю на фугас (комплект)У меня именно такой. Посилання на коментар Поділитися на інших сайтах More sharing options...
semengv Опубліковано: 25 березня 2016 Поділитись Опубліковано: 25 березня 2016 За счет чего уменьшается количество бактерий итд? Я думаю они там просто не живут - темно. На форумхаус где-то читала - человек делал съемку камерой внутри труб - там сухо и чисто. Даже конденсата не было. Я этому почему-то больше верю, чем наличию бактерий. Для них нужна питательная среда и свет. А в трубах - только ветер... Вот - ответила, а потом пошла по ссылке. Косвенно моя мысль подтверждена. Ура! теперь буду спокойно кидать трубу ТО и не морочиться! И ну их - эти бактерии! Интуитивно понимала, что делаю правильно, но подтверждений слишком мало! Вот там действительно написано - ведь мы дышим не через фильтр или противогаз! И все это попадает к нам в легкие напрямую! А в ТО проходит через какой-никакой фильтр и сквозняк внутри труб очень имеет значение! И только потом все это приходит в наш дом! Так какой воздух лучше? Это все равно, что покупать бутылированную очищенную воду - глупость и выкачка денег! Выпиваем 3-5 литров грубо в день, а воздуха вдыхаем сколько? Объем легких Х на частоту дыханий. Посилання на коментар Поділитися на інших сайтах More sharing options...
Dmode Опубліковано: 25 березня 2016 Автор Поділитись Опубліковано: 25 березня 2016 (змінено) За счет чего уменьшается количество бактерий итд? Чисто по ощущениям, исследования эти чисто маркетинговые... Был период в прошлом веке когда радиоактивные элементы добавляли даже в детское молоко, официально считая сие полезным. Радиоактивные помады тоже были, лекарства... Читал много позитивных отзывов реальных пользователей ГТ на польских форумах. Для себя принял решение что буду делать, как минимум noFrost вариант (~25-30м). А по исследованиям мы можем делать миллион предположений как в плюс так и в минус, в меру своей параноидальности/оптимистичности, пока кто-то не найдет их полный текст. Я же предполагаю, что за счет пластикового материала труб и постоянного движения воздуха и достигается упомянутый эффект. Выше выложил сравнение двух систем. У каждой есть свои плюсы и минусы. Воздушная система, по мнению автора сравнения, более эффективна, в следствии меньшего количества теплообменов, водяная потребляет электроэнергию и требуется дополнительный теплообменник, обвязка, но не требует чисток. Воздушная может требовать чисток раз в 5-10 лет. Водяная система может быть легче реализована в трудных грунтовых условиях, в том числе в случае высоких грунтовых вод. Добавлено через 16 минут Это все равно, что покупать бутылированную очищенную воду - глупость и выкачка денег! Выпиваем 3-5 литров грубо в день, а воздуха вдыхаем сколько? Объем легких Х на частоту дыханий. Если вода из скважины по критериям "питьевой" не удовлетворительна, то покупка очищенной воды может быть вполне вариантом, по сравнению с установкой системы фильтрации. Змінено 25 березня 2016 користувачем Dmode 4 Посилання на коментар Поділитися на інших сайтах More sharing options...
Рекомендовані повідомлення
Створіть акаунт або увійдіть у нього для коментування
Ви маєте бути користувачем, щоб залишити коментар
Створити акаунт
Зареєструйтеся для отримання акаунта. Це просто!
Зареєструвати акаунтУвійти
Вже зареєстровані? Увійдіть тут.
Увійти зараз