iks Опубліковано: 25 січня 2020 Поділитись Опубліковано: 25 січня 2020 Да. Была мыша было холодно ногам. Надо от пола выводить вверх. Или подогревать. Какой шнур есть в 220 будешь он 60 градусов греет. Посилання на коментар Поділитися на інших сайтах More sharing options...
standov Опубліковано: 26 лютого 2020 Поділитись Опубліковано: 26 лютого 2020 Не нашел общую тему, спрошу тут) поскажите заслонки с приводами (вентс крв) есть разница как ставить штоком горизонтально или вертикально? Двигаться будут пару раз в день 1 Посилання на коментар Поділитися на інших сайтах More sharing options...
shneider_vova Опубліковано: 26 лютого 2020 Поділитись Опубліковано: 26 лютого 2020 Не нашел общую тему, спрошу тут) поскажите заслонки с приводами (вентс крв) есть разница как ставить штоком горизонтально или вертикально? Двигаться будут пару раз в день думаю, ей все равно. она достаточно туговато идет и так, гравитационное влияние, как по мне, отсутствует. Две сейчас диаметром 160 установлены в системе, будут использоваться с приводом cm230-R. привод еще не подключил Посилання на коментар Поділитися на інших сайтах More sharing options...
Romatr Опубліковано: 14 червня 2020 Поділитись Опубліковано: 14 червня 2020 Нужна консультация по вентиляции. Исходные данные: Дом газоблок 300мм+100мм пенопласт утепление, нужно организовать какую-то бюджетную вентиляцию без серьезных разрушений и доработок. Какие есть варианты? На крыше есть гильза 200мм, ее можно задействовать под естественную или принудительную вентиляцию. Желательно без серьезных вмешательств, потому что сделана черновая отделка. Варианты: 1.может поставить несколько прана( один на первый этаж и второй на второй где-то в районе ступеней) 2. Поставить вытяжной вентилятор на крышу, Сделать пару точке забор с основных комнат, А так же сделать на первом этаже несколько приточных механических вент.каналов с возможностью регулировки. Посилання на коментар Поділитися на інших сайтах More sharing options...
sovladim Опубліковано: 3 вересня 2020 Поділитись Опубліковано: 3 вересня 2020 Здравствуйте. Нужно заменить Вентс 150 ВК. Работает без отключения 15 лет, стал шумным. Вопрос к спецам, есть ли более производительное в таком же корпусе? На сайте вентса, в характеристиках, параметры новых отличаются от заявленных на бирке 2004 года (мощность стала больше, а производительность меньше), это покращення? Посилання на коментар Поділитися на інших сайтах More sharing options...
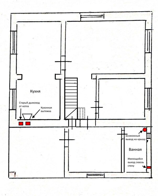
ssergey Опубліковано: 19 січня 2021 Поділитись Опубліковано: 19 січня 2021 Здравствуйте. Поднимаю тему. Задавал вопрос в другой ветке, но ответа не получил. Еще раз прошу опытных форумчан помочь с планировкой вытяжки. В двужэтажном доме по факту из вентиляционных выходов есть только вытяжка из кухни в стене, которая по внутристенному каналу идет на крышу параллельно со старым дымоходом. Пока в санузлах первого и второго этажа планирую выходы через стену на улицу, поскольку вертикальный канал не был предусмотрен. Посоветуйте, пожалуйста, достаточно ли будет этой вентиляции, или стоит заморочится и вывести вентиляционные трубы на крышу из сан узлов. Окна в санузлах имеются. План добавляю. Спасибо. Посилання на коментар Поділитися на інших сайтах More sharing options...
jenkins Опубліковано: 19 січня 2021 Поділитись Опубліковано: 19 січня 2021 Здравствуйте. Поднимаю тему. Задавал вопрос в другой ветке, но ответа не получил. Еще раз прошу опытных форумчан помочь с планировкой вытяжки. В двужэтажном доме по факту из вентиляционных выходов есть только вытяжка из кухни в стене, которая по внутристенному каналу идет на крышу параллельно со старым дымоходом. Пока в санузлах первого и второго этажа планирую выходы через стену на улицу, поскольку вертикальный канал не был предусмотрен. Посоветуйте, пожалуйста, достаточно ли будет этой вентиляции, или стоит заморочится и вывести вентиляционные трубы на крышу из сан узлов. Окна в санузлах имеются. План добавляю. Спасибо. Я не спец по вентиляции, но могу сказать по своему скромному опыту. Дырка в стене просто горизонтально практически не создает никакой тяги когда она нуна ( например когда хочется проветрить ванную после водных процедур ), и создает существенные неприятности когда на улице холодно - просто тянет шо дурное. Грубо говоря это ровно то же самое что приоткрытое окно. Поэтому просто дырка в стене это не удачное решение. Вот дырка + обратный клапан (а лучше 2 во избежание промерзания) + вентрилятор принудительный внутри трубы - это уже то чем можно пользоватся. Как пользоватся - когда вентилятор работает - вытяжка есть. Когда не работает - практически вытяжки нет. Если хочется более удачное решение в плане долгосрочных перспектив, удобства - то стоит сделать вертикальную трубу вверх чтобы обеспечить перепад высот хотя бы 4 метра и больше. Тогда будет естественная тяга и без вентилятора, которую можно будет регулировать задвижкой по желанию. 2 Посилання на коментар Поділитися на інших сайтах More sharing options...
ssergey Опубліковано: 20 січня 2021 Поділитись Опубліковано: 20 січня 2021 А будет ли достаточно имеющихся каналов для площади 90 м2 в данном случае? Посилання на коментар Поділитися на інших сайтах More sharing options...
ssergey Опубліковано: 22 січня 2021 Поділитись Опубліковано: 22 січня 2021 Как думаете - при прокладке вертикального канала на крышу, горизонтально довести вытяжку до дальнего от дверей угла и имеющееся в стене отверстие заложить (схема выше), или как-то его возможно использовать? Посилання на коментар Поділитися на інших сайтах More sharing options...
ssergey Опубліковано: 24 січня 2021 Поділитись Опубліковано: 24 січня 2021 Попробую другим путем. Может кто-то откликнется. Исходя из схемы: на кухне одна естественная, одна принудительная в разных каналах, в санузле - одна с выводом на крышу и вентилятором. В дальних углах комнаты два приточных стеновых клапана. Работоспособна ли такая вентиляция? Оцените, пожалуйста. Посилання на коментар Поділитися на інших сайтах More sharing options...
sidus Опубліковано: 31 травня 2021 Поділитись Опубліковано: 31 травня 2021 Не хочу создавать отдельную тему, попробую тут спросить: Хочу ставить приточный клапаны аля КИВ-125 на 2ом этаже в доме, но проблема в том, что стены довольно толстые: кирпич в 2 кирпича (51см) + 10 см утеплитель + штукатурка еще 2-3 см, в итоге выходит 63-64см, а у большинства приточных клапанов длина трубы 60 см. Что посоветуете? Есть модели с удлиненной трубой или можно доколхозить трубу 60см? Посилання на коментар Поділитися на інших сайтах More sharing options...
vovapk Опубліковано: 14 вересня 2021 Поділитись Опубліковано: 14 вересня 2021 Кто-то может посоветовать адекватных проверенных людей по вентиляции в Киеве? Нужно спроектировать и сделать вентиляцию в частном доме на этапе коммуникаций перед внутренней отделкой. Посилання на коментар Поділитися на інших сайтах More sharing options...
PrudnikovAlex Опубліковано: 16 червня 2023 Поділитись Опубліковано: 16 червня 2023 Добрый день! Не нашел похожую тему, попрошу совета здесь. В процессе строительства так вышло что у одной комнаты пол оказался ниже уровня земли сантиметров на 20-30, поэтому часть стены являет собой фундамент (на фото видно), как бы полу-полуподвальное помещение. По всей площади комнаты расстелен теплый пол, под ним 50мм утеплитель поверх черновой стяжки, стены газоблок 300мм утеплен базальтватой 100мм, фундамент утеплен 100мм пенопласт, снаружи сделана отмостка, 3 стены наружных, размеры условно 5м х 5м. Стены изнутри поштукатурены 20-30мм машинной штукатуркой. Оставлена была ниша под встроенный шкаф, снаружи холодная кладовка, которая не имеет сообщения с помещением напрямую, только условное через кровлю. Кровля плоская легкая на деревяных перекрытиях 250мм минваты. Вентиляция в комнате - только проветриванием. Теперь о проблемах. 1.Плесневеет один угол - на схеме отмечен серым. 2.Пока в нише для шкафа вещи лежали навалом - все было хорошо, когда появился шкаф - появился запах сырости, плесени, как в старом "бабушкином" доме. Открытая дверь в шкафу не помогает. Думаю об установке рекуператора в плесневеющем углу вверху, там как раз была выведена розетка под возможный кондиционер. Вопрос - куда его выводить - на улицу или в кладовку? В кладовке сухо, проблем с влажностью нет. А что с шкафом делать? Насверлить отвестий в полках, или прорези какие-то ближе к стенке? Нижняя полка получается тепло от теплого пола блокирует. У кого-то были похожие проблемы, как боролись? Посилання на коментар Поділитися на інших сайтах More sharing options...
DimaF Опубліковано: 16 червня 2023 Поділитись Опубліковано: 16 червня 2023 По моему здесь дело не в вентиляции, а в браке строительства. Где то затекает вода, вот оно и цветет и пахнет. Посилання на коментар Поділитися на інших сайтах More sharing options...
shneider_vova Опубліковано: 16 червня 2023 Поділитись Опубліковано: 16 червня 2023 IMHO: проблема в холодній кладовці (хоча якщо проблема виникла навесні чи зараз літом, то це ні до чого) - бо промерзає вказаний кут, та кут шафи, що межує з кладовкой. вихід - утеплення кладовки з середини. теплий контур повинен бути замкнений 4 Посилання на коментар Поділитися на інших сайтах More sharing options...
DimaF Опубліковано: 16 червня 2023 Поділитись Опубліковано: 16 червня 2023 38 минут назад, shneider_vova сказал: бо промерзає вказаний кут 30 см газоблока в качестве второй стены промерзают!? Посилання на коментар Поділитися на інших сайтах More sharing options...
shneider_vova Опубліковано: 16 червня 2023 Поділитись Опубліковано: 16 червня 2023 54 минуты назад, DimaF сказал: 30 см газоблока в качестве второй стены промерзают!? а чому б і ні? я не кажу, що там -5 градусів, але там температура явно нижча, ніж на утепленій стіні, тож безконтактний термометр, та гідрометр в кімнаті дасть багато відповідей Посилання на коментар Поділитися на інших сайтах More sharing options...
PrudnikovAlex Опубліковано: 16 червня 2023 Поділитись Опубліковано: 16 червня 2023 Нет, воды снаружи там там нет, да и зимой ей неоткуда взяться при минусовой температуре. Кладовка неотапливаемая, но дверь там есть - плюс утепленная, на жестянку с новостроя наклеил 50мм пенополистирола изнутри. Стена наружная у кладовки 10см газоблок + 10 см утеплитель. Зимой температура в кладовке плюсовая, там стоит консервация и овощи, минус только при меньше -10 -12 ночью, у нас такое бывает редко. У неокторых соседей вообще дома из газоблока 300мм неутепленные, и ничего не промерзает. В углу наверное из-за бетона точка росы в углу оказалась вгутри комнаты, там на более холодной стенке появляется вероятно конденсат. А по шкафу - пока была открытая ниша без шкафа - запаха не было. Посилання на коментар Поділитися на інших сайтах More sharing options...
Пролин Опубліковано: 16 червня 2023 Поділитись Опубліковано: 16 червня 2023 8 часов назад, PrudnikovAlex сказал: Вопрос - куда его выводить - на улицу или в кладовку? А что вы собираетесь рекупирировать? Отопление и вентиляция смогут решить ваши вопросы. Неотапливаемая кладовка, т.е. наружная температура на "газоблок 300мм". -Утеплите эту внутреннюю стену или отопите кладовку. По шкафу - то же самое - отопление и вентиляция. Посилання на коментар Поділитися на інших сайтах More sharing options...
andrey_ka Опубліковано: 16 червня 2023 Поділитись Опубліковано: 16 червня 2023 11 годин тому, PrudnikovAlex сказав: 1.Плесневеет один угол - на схеме отмечен серым. А як ви побачили плісняву? Там щось стояло впритул до цього кута? 11 годин тому, PrudnikovAlex сказав: 2.Пока в нише для шкафа вещи лежали навалом - все было хорошо, когда появился шкаф - появился запах сырости, плесени, как в старом "бабушкином" доме. Открытая дверь в шкафу не помогает. Вийіміть звідти шафу , і скоріш за все , за задньою стінкою ви також побачите плями плісняви . Червона лінія - це початок ГБ ? Посилання на коментар Поділитися на інших сайтах More sharing options...
PrudnikovAlex Опубліковано: 16 червня 2023 Поділитись Опубліковано: 16 червня 2023 1 час назад, andrey_ka сказал: А як ви побачили плісняву? Там щось стояло впритул до цього кута? Вийіміть звідти шафу , і скоріш за все , за задньою стінкою ви також побачите плями плісняви . Червона лінія - це початок ГБ ? Впритул до кута нічого не стоїть - завжди як на фото - приінтер на підлозі, потім стол. Десь по червоній лінії дійсно плюс-мінус починається газоблок. Шафу вийняти нема можливості. Шафа умовна - полиці кріпляться до стін ніши, задньої стінки взагалі немає, все це закриває розсувна система з трьох дверцят. Деякі речі з сінтетики на нижніх полицях - рюкзак, чохол були у плісняві, й на задньої стінці знизу була. 1 Посилання на коментар Поділитися на інших сайтах More sharing options...
Фрай Опубліковано: 17 червня 2023 Поділитись Опубліковано: 17 червня 2023 17 часов назад, PrudnikovAlex сказал: Нет, воды снаружи там там нет, да и зимой ей неоткуда взяться при минусовой температуре Капиллярный подсос по фундаменту может быть 1 Посилання на коментар Поділитися на інших сайтах More sharing options...
andrey_ka Опубліковано: 17 червня 2023 Поділитись Опубліковано: 17 червня 2023 7 годин тому, PrudnikovAlex сказав: Впритул до кута нічого не стоїть - завжди як на фото - приінтер на підлозі, потім стол. Якщо стороннє потрапляння води виключене , то це (ІМХО) капілярне підсмоктування вологи з землі. Коли я робив ремонт в старому будинку , то також опускав підлогу нижче рівня першого ряду (у моєму випадку цегли). І після штукатурки , стяжки , також мокріла нижня частина стіни. І мокріла із за того , що штукатурка стіни пов'язана з чорновою стяжкою. Тобто , штукатурка робилась притул до чорнової стяжки. А так як я , під час штукатурних робіт використовую велику кількість води (вимиваю пилюку з поверхні стіни , із шланга під тиском , пливаю стіну перед штукатрними роботами) , то це доволі сильно зволожило низ стіни , і все що під нею. І потім ця волога доволі довго виходила , через от таке мокріння стіни. А остаточно вона вийшла тому , що фундамент доволі високо піднятий над землею 80см , а в середині засипано щось на кшталт відходів від гасіння вапна , що унеможливлює доступу земельної вологи. 8 годин тому, PrudnikovAlex сказав: Шафу вийняти нема можливості. Шафа умовна - полиці кріпляться до стін ніши, задньої стінки взагалі немає, все це закриває розсувна система з трьох дверцят. Деякі речі з сінтетики на нижніх полицях - рюкзак, чохол були у плісняві, й на задньої стінці знизу була. Зніміть полиці та вкоротіть її на 2см , щоб між стіною і ними був зазор. Нижню полицю підніміть над підлогою на 10см , а в дверцятах та бокових панелях вріжте вентеляційні решітки. Аналогічно зробіть зверху. Тепла підлога під шафою є ? Посилання на коментар Поділитися на інших сайтах More sharing options...
PrudnikovAlex Опубліковано: 17 червня 2023 Поділитись Опубліковано: 17 червня 2023 В мене штукатурка не повїязана зі стяжкою. Спочатку робилась чорнова стяжка, потім клали пенополістірол під теплу підлогу та саму підлогу по усій площані кімнати, потім чистова полусуха стяжка. До речі у протилежному куті придивився - також цвіль. Мабуть тільки примусова вентиляція допоможе. Посилання на коментар Поділитися на інших сайтах More sharing options...
andrey_ka Опубліковано: 17 червня 2023 Поділитись Опубліковано: 17 червня 2023 17 хвилин тому, PrudnikovAlex сказав: В мене штукатурка не повїязана зі стяжкою. Це , немає значення. Вона пов'язана з фундаментом , який в свою чергу пов'язаний з землею , і цього достатньо. При тому , що вона ще й гіпсова. 22 хвилини тому, PrudnikovAlex сказав: Мабуть тільки примусова вентиляція допоможе. Не факт , що ви зможете забезпечити достатню конвекцію в тих місцях , навіть примусовою вентиляцією. Вам потрібно усунути причину , а не наслідки. Посилання на коментар Поділитися на інших сайтах More sharing options...
Рекомендовані повідомлення
Створіть акаунт або увійдіть у нього для коментування
Ви маєте бути користувачем, щоб залишити коментар
Створити акаунт
Зареєструйтеся для отримання акаунта. Це просто!
Зареєструвати акаунтУвійти
Вже зареєстровані? Увійдіть тут.
Увійти зараз